Prodej bytu, 3+kk, 118 m²
Resort Stříbrnice
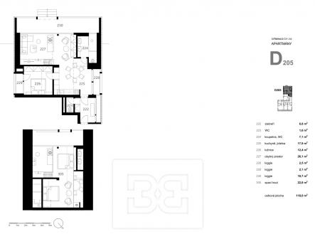
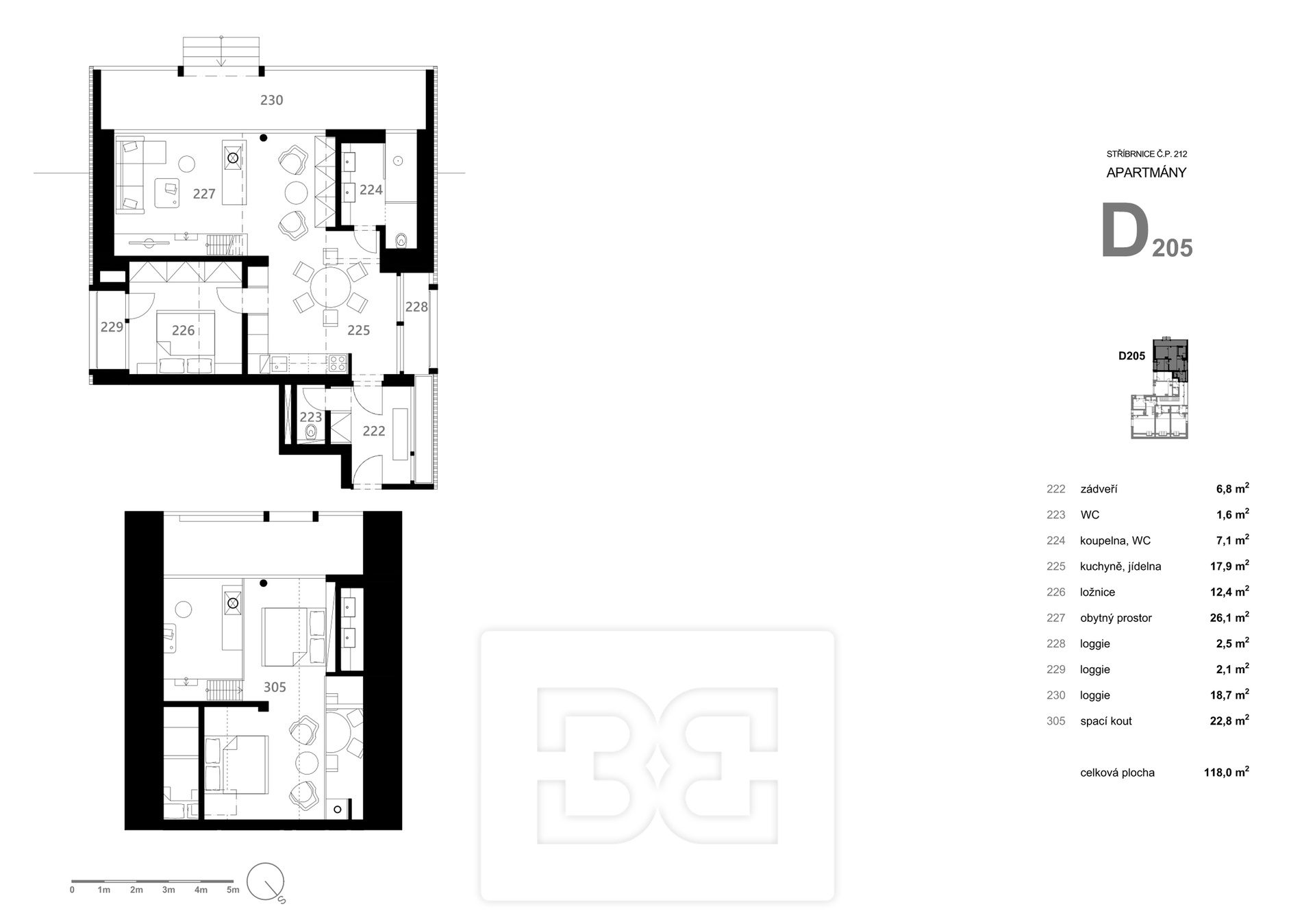
Hledáte apartmán v nádherné přírodě, ekologické a energeticky úsporné a zároveň ve vysokém standardu? Pak bychom Vám rádi exklusivně nabídli rezidenční developerský projekt (nyní do konce ledna se slevou 10% s 1 parkovacím navíc zdarma!) Resort Stříbrnice, nacházející se přímo vedle horského areálu Kraličák, z jehož vrchu sjedete na lyžích přímo k Vašemu apartmánu. Celkem je ve dvou objektech (budova D a budova ABC) 29 jednotek, které si můžete začít užívat již na jaře tohoto roku! Pro majitele bude k dispozici též samostatná vyhřívaná budova, ve které si budete moci v zimní sezoně vysušit boty a lyžáky. V cyklistické sezoně bude objekt sloužit jako kolárna s kapacitou pro 40 kol. Prostor bude hlídaný kamerovým systémem. K apartmánům přísluší sklepní kóje a parkovací stání. Lokalita je vhodná jak pro zimní tak letní období, v okolí je mnoho možností, jak si užívat volnočasové aktivity. Areál Kraličák vznikl spojením lyžařských středisek ve Stříbrnicích a Hynčicích pod Sušinou. Je pro ty, kteří si chtějí užít naše sjezdovky i procházky s panoramatickými výhledy po okolí. V létě je zde k dispozici trail & enduro park, velké množství stezek, rybník Úžas, kde si můžete půjčit např. paddleboard, atp. Veškeré info areálu, kde se dozvíte o aktivitách a službách, jež tato lokalita nabízí. Developer, jež stavbu zajišťuje, ji dělal tak, aby se i on sám v projektu cítil dobře, proto zvolil materiály a technologie, které jsou nadčasové a velmi kvalitní – teplo zajišťuje tepelné čerpadlo (geotermální vrt), některé jednotky jsou vybavené rekuperací, ve standardu jsou hliníková okna s izolačním trojsklem, vinylová podlaha, designové koupelny, ovládací prvky ABB, atp., rádi vám zašleme kompletní standardy projektu. Tato konkrétní dvou podlažní jednotka se nachází v 1.nadzemním podlaží v části D, s označením D.205, má celkovou plochu 118m2 se třemi lodžiemi. V ceně je sklepní kóje a dvě venkovní parkovací stání. Cena je uvedená bez DPH (21%). Jedná se zároveň o zajímavou investiční příležitost, a to za účelem následného krátkodobého pronájmu, což Vám ráda zajistí naše společnost. Nechcete ztrácet čas? V případě zájmu Vám rád pošlu odkaz na virtuální prohlídku, abyste měli úplnou představu o nabízené nemovitosti (360° prohlídka s možností orientace ve videu dle vašich představ).


