Prodej - dům/vila, 140 m²
Rodinný dům 4+1 Nová Ves - Staňkovice
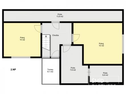
Dovoluji si Vám nabídnout k prodeji rodinný dům 4+1 v obci Nová Ves - Staňkovice č. p. 29 u Uhlířských Janovic. Nová Ves se nachází v okrese Kutná Hora, asi 1 km na severovýchod od Staňkovic, 2,5 km od Uhlířských Janovic. Dům se nachází na okraji obce. V blízkosti je autobusová zastávka (450 m od domu), dětské hřiště a sportoviště. Veškerá občanská vybavenost, obchody, škola a školka jsou v Uhlířských Janovicích. Dům je cihlový, okna jsou v přízemí a v prvním patře směrem do silnice plastová, zbytek původní dřevěná. Podlahy betonové, schody dřevěné. Rozvody původní. Skládá se v přízemí ze zádveří a chodby, obývacího pokoje, kuchyně, ložnice, koupelny s vanou a WC se sprchovým koutem. V prvním patře potom ze dvou pokojů, prostorné půdy a terasy. Dále je u domu garáž, dílna a kotelna s půdou, kamenná stodola a zahradní domek s udírnou a sklípkem. Dům je napojen na vodovod, elektřinu, plyn, odpady svedeny do septiku, studna na pozemku. V případě zájmu o prohlídku mě neváhejte kontaktovat.


