Prodej - chata/rekreační objekt, 76 m²
Prodej chalupy 76 m2, pozemek 801 m2, Smilovice
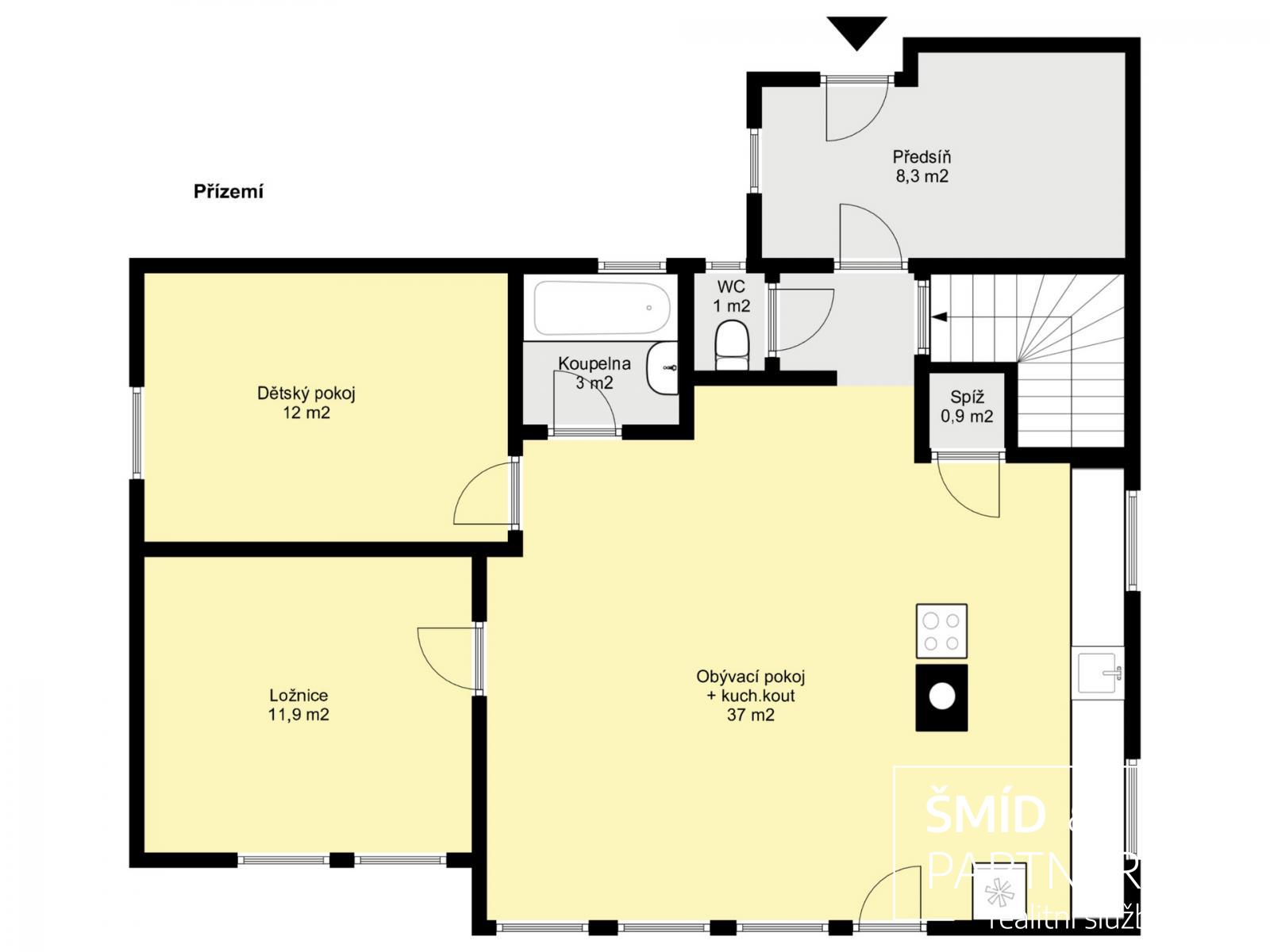
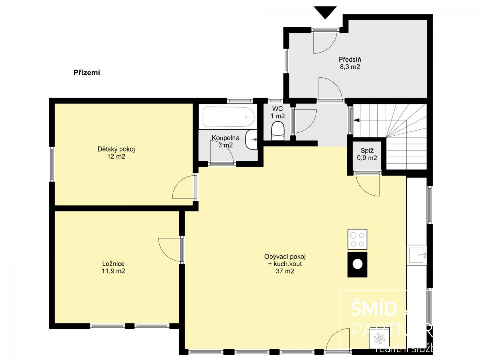
Dobrý den, nabízíme k prodeji rodinný dům/chalupu, o užitné ploše 76 m2 s prostorným sklepem 57 m2 a pozemkem o výměře 801 m2 v obci Smilovice, okres Kutná Hora. Dispozice 3+kk nabízí pohodlné bydlení a sklepní prostory umožňují rozšíření o další obytné místnosti. Dům je vytápěn kotlem na tuhá paliva, voda je čerpána z vydatné studny a odpad je sveden do jímky. Pro úsporný provoz slouží také nová nádrž na dešťovou vodu. K prodeji bude připraveno povolení k připojení na obecní vodovod. Na pozemku jsou již osazeny sloupky pro budoucí jihovýchodní terasu. Pozemek o velikosti 802 m2 poskytuje dostatek prostoru pro zahradu, relaxaci i další případné úpravy. Dům je vhodný jak k trvalému bydlení, tak i k rekreaci díky klidnému prostředí a dobré dostupnosti služeb v nedalekých Uhlířských Janovicích, Sázavě, Ratajích nad Sázavou, nebo třeba Kutné Hoře. K nemovitosti lze dokoupit také navazující stavební pozemek o velikosti přes 700 m2 (1 450 000 Kč), nebo starší rodinný dům k rekonstrukci sousedící z druhé strany (2 300 000 Kč). Nemovitost lze financovat hypotečním úvěrem, s nímž vám rádi pomůžeme. Uvedené m2 jsou pouze orientační. Pokud Vás nabídka zaujala, neváhejte mě kontaktovat.


