Prodej - dům/vila, 78 m²
Prodej, rodinný dům, 3+kk, 78 m² , Šťáhlavy ul. Seifertova
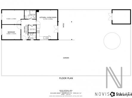
Nabízíme k prodeji moderní rodinný dům o dispozici 3+kk s užitnou plochou 78 m², postavený jako kvalitní dřevostavba v roce 2019. Nemovitost se nachází v klidné rezidenční zástavbě a je ve výborném technickém stavu – stačí se nastěhovat. Podlahové vytápění a ohřev vody zajišťuje tepelné čerpadlo, instalované před cca dvěma lety, které výrazně snižuje provozní náklady. Dům je energeticky velmi úsporný. Součástí pozemku je krásně udržovaná zahrada poskytující dostatek prostoru k odpočinku a vyžití pro děti i dospělé. K příjemnému posezení slouží velká zastřešená pergola navazující na obývací prostor. Interiér domu tvoří světlý obývací prostor s kuchyní a přímým vstupem na terasu, dále dva samostatné pokoje, technická místnost, koupelna s prostorným sprchovým koutem a dvě toalety. Občanská vybavenost a lokalita: V místě je kompletní infrastruktura pro pohodlné každodenní fungování: • mateřská a základní škola v docházkové vzdálenosti, • potraviny, menší obchody a služby přímo v obci, • restaurace, hřiště a sportoviště, • výborné autobusové a vlakové spojení do Plzně, • rychlý nájezd na hlavní tahy. Klidná a bezpečná lokalita s rodinným charakterem, perfektní pro děti i pro ty, kdo hledají pohodové bydlení s minimálními náklady. Další informace: K nemovitosti je přiložen půdorys a virtuální prohlídka, která umožní detailní představu o dispozici domu. PROHLÍDKOVÝ DEN SE USKUTEČNÍ 18.12.2025 OD 13 hodin. Neváhejte si zarezervovat svůj prohlídkový čas u makléře.


