Pronájem - skladovací prostor, 641 m²
Pronájem haly ve Stádleci, 641 m2, 80,-Kč/m2/měsíc
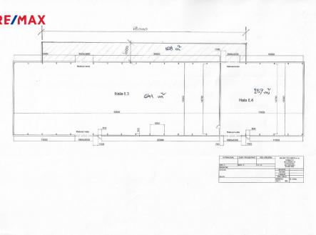
Nabízíme k pronájmu objekt haly ve Stádleci, která se nachází v oploceném areálu společnosti Bauer Technics. Hala má zastavěnou plochu 975 m2. Hala je rozdělena na 2 části. Větší z nich má rozměry 43,6 m x 14,7 m (641 m2) a menší 17,6 m x 14,7 m (259 m2). Výška stropu je 3,5 m. Do každé z hal vedou dvoje vrata s výškou 3,3 m, kterými může vjet a vyjet kamion. Je možné pronajmout obě haly samostatně nebo vcelku. Plášť haly je ze zateplených sendvičů a podlaha je asfaltová. Společnost Bauer Technics nabízí i další služby spojené s provozem skladu: vyložení a expedice, vedení skladu, zabezpečení personálu, manipulační technika. V administrativní budově společnosti je možné si dále pronajmout kancelář nebo zasedací místnost. V případě dotazů kontaktujte makléře nabídky.


