Pronájem bytu, 3+kk, 122 m²
Pronájem bytu 3+kk s terasou a parkováním, České Budějovice
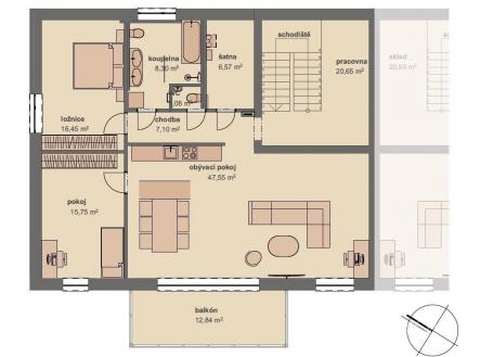
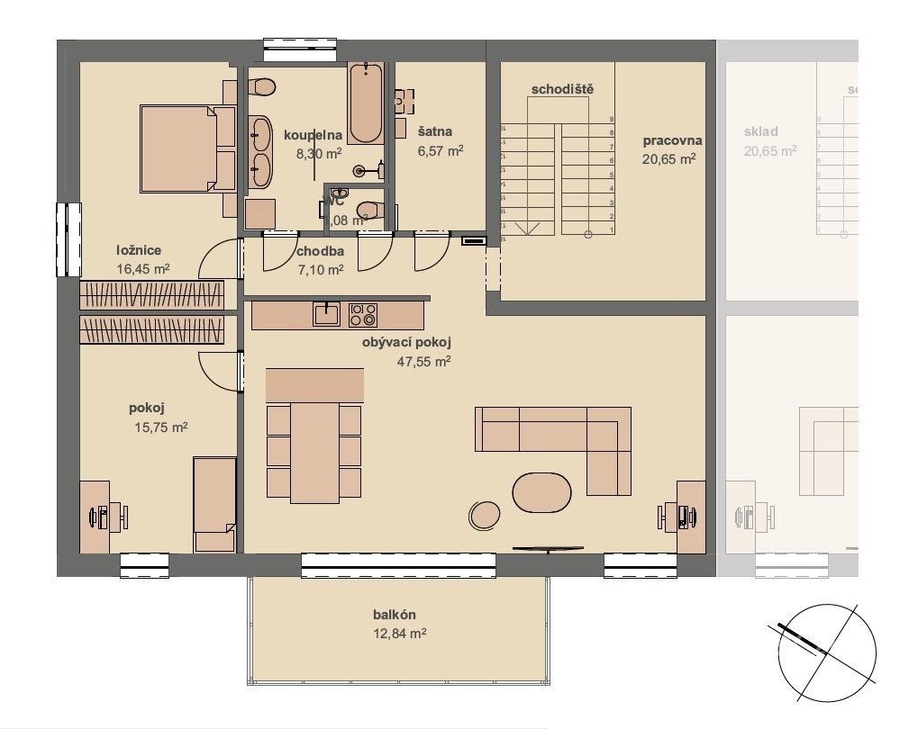
Luxus s výhledem na celé město. Západy slunce se sklenkou vína pozorované z pohodlí terasy bytu 3+kk, který nabízí 135 m2 užitné plochy. Pokud máte rádi prostor a moderní bydlení jste tady správně. Nabízíme k pronájmu byt 3+kk o celkové ploše 135 m2, který se nachází ve 3.NP novostavby bytového domu na Staré Pohůrce v Českých Budějovicích. • pronájem bytu 3+kk s terasou o celkové ploše 135 m2 • luxusní bydlení s výhledem na celé město • částečně vybavený interiér • design a technologie • dvě vyhrazená parkovací stání • výborná dopravní dostupnost Jen obytný prostor nabízí 48 m2 podlahové plochy, takže máte takový běžný byt 2+kk jen v obýváku. Tady se prostě mačkat nebudete. Přístup k hlavnímu vchodu bytového domu je řešen ze zadní zahrádky. Dále po krátkém vnitřním schodišti ke vstupním dveřím bytu. Vstupujeme do otevřené galerie s pracovnou (20,65 m2). Navazující chodba zajištuje vstup do již zmíněného obytného prostoru s kuchyňským koutem (47,55 m2) a přímým vstupem na terasu (13 m2). Kuchyně je vybavena moderní kuchyňskou linou, barovým pultem a v obytném prostoru se nachází sedací souprava a další vybavení. Z obytného prostoru je přístupný pokoj (15,75 m2). Z chodby je vstup do koupelny (8,30 m2), samostatné WC místnosti, šatny (6,57 m2) a ložnice (16,45 m2). Koupelna je vybavena vanou, sprchovým koutem s WalkIn zástěnou, umyvadlem, toaletou a pračkou. V ložnici i v pokoji se nachází dvoulůžkové postele a skříně. Byt je vytápěn vlastním plynovým kotlem a nechybí řízené větrání s rekuperací tepla. Dvě parkovací stání k bytu jsou vyhrazena na přilehlém parkovišti. Lokalita samotná je klidným místem v zástavbě rodinných domů. V docházkové vzdálenosti se nachází obchod a zastávky MHD. V okolí jsou mateřské a základní školy. Autem jste za dvě minuty na nájezdu D3, ale díky tunelu Pohůrka nemáte o dálnici ani ponětí. Výše měsíčního nájemného činní 26.000, Kč, zálohy na služby 5.000, Kč. Vratná kauce ve výši dvou čistých měsíčních nájmů. Odměna za zprostředkování 26.000, Kč plus DPH 21%.


