Prodej - dům/vila, 106 m²
Moderní rodinný dům 4+kk s pozemkem 551 m2-ZTV Srubec U Školky-volný dům č.20 k předání v 8/2026
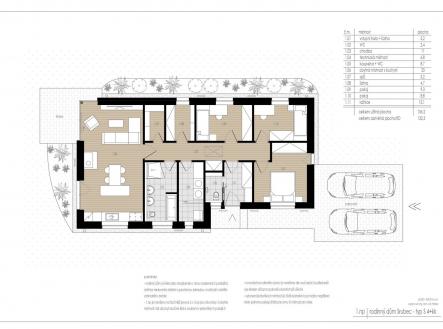
ZTV Srubec U Školky - Nová výstavba přízemních rodinných domů "na klíč". V nabídce volný dům č.20 na rovinatém pozemku. Nabízíme samostatné prostorné rodinné domy 4+kk typ "Stodola" s pozemkem o výměře 551 m2 s moderním zpracováním a možností využití podkroví. Zahrady jsou orientovány na západ. Dokončení, kolaudace, předání 8/2026. Bydlení na Srubci – soukromí ve vlastním domě, sportovní vyžití v okolní přírodě a snadná dostupnost do Č. Budějovic autem, MHD a nově obyvatelé šetří čas do zaměstnání díky sjezdu na dálnici na Pohůrce. V obci se koná spoustu sportovních a zábavných akcí pro děti, v těsné blízkosti domu je krásná příroda, kde můžou obyvatelé relaxovat při procházkách nebo při venčení čtyřnohých mazlíčků. Na Srubci je mateřská i základní škola, obchod s potravinami, hospůdka, fotbalové hřiště a několik dětských hřišť. Pár minut od Srubce je supermarket Lidl. Zákazník nyní může sám volit konečnou podobu domu výběrem dle vlastního přání (podlahových krytin, vnitřních dveří, obkladů, dlažeb a sanity koupelny), pozemek je oplocen, standardy předložíme zájemci. Obytná plocha domu je 106,17m2. Zastavěná plocha domu 142m2 + parkovací stání pro 2 auta cca 36m2+terasa o výměře 9,37m2. Dispozice: vstupní předsíň(5,18m2), samostatné WC(2,35m2), tech.místnost(6,58m2), koupelna s WC(8,91m2), obývací pokoj s kuch.koutem (33m2), spíž (3,23m2), chodba (11m2), 3 ložnice (13,15m2, 9,25m2, 8,8m2), šatna (4,72m2)+úložný prostor na půdě. Vybavenost domu: Zpevněná plocha – terasa ze zámkové dlažby Best Beleza, vchod a parking ze zámkové dlažby Best Klasik, plot – podhrabový obrubník + 3D drátěné poplastované pletivo (180–200cm), systémová branka cca 1m + 3m brána dvoukřídlá, příprava na venkovní žaluzie (kastlíky), příprava na krbová kamna a klimatizaci, konstrukce Porotherm 240–300 obvod, vnitřní 200, příčky 150, zateplovací systém 180/200mm polystyren, plastová okna a dveře – izolační trojsklo, barva bílá, veškeré vnitřní rozvody – elektřina, plyn, voda, topení, plynový kotel BAXI se zásobníkem vody, v celém domě podlahové vytápění, podlahy vinyl a dlažba, dveře s obložkami, koupelna se sprchovým koutem, vanou, umyvadlem a toaletou, příprava na fotovoltaiku. V ceně není: kuch.linka, svítidla, žaluzie, klimatizace, komín, nábytek, pergola, finální úprava zahrady. Pozemky jsou přístupné po obecní komunikaci, výstavba domů probíhá na zasíťovaném a zkolaudovaném ZTV–plyn, elektřina, vodovod, kanalizace, Starnet – optický kabel. Velký zřetel je kladen na energetickou úspornost domu, aby jeho budoucí majitel měl co nejnižší náklady na provoz domu (PENB–B). Hypoteční servis zdarma (naši hypoteční poradci řeší úvěry u všech bankovních domů za nejlepších podmínek na trhu). Navazujeme na již několikátý úspěšně realizovaný a velmi žádaný projekt investora, který je jednička ve svém oboru. Již 15 let bydlíme v domě, který stavěl tento developer, tak můžeme z vlastní zkušenosti vřele doporučit. Těšíme se na vás při prohlídce na Srubci. Buďte další spokojený soused.


