Prodej - dům/vila, 121 m²
Novostavba dřevostavby 4+kk, pozemek 790 m2, okr. Rakovník
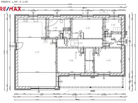
Hledáte domov pro Vaši rodinu? Nabízíme Vám dům, který se může stát Vaším novým domovem. Tento moderní jednopodlažní bungalov o užitné ploše 121 m² se nachází v malebné obci Srbeč, v klidném prostředí přírodního parku Džbán. Jedná se o ekonomicky úspornou novostavbu jednopodlažního bungalovu navrženou tak, aby splňovala současné nároky na moderní domov. Tak je koncipován i interiér s dispozicí 4+kk. U vchodu do budovy se nachází technická místnost pro obsluhu tepelného čerpadla, dále jsou umístěny 3 ložnice, 2 z nich mají vlastní šatnu, z chodby je dále vstup do koupelny s WC a do dalšího, samostatného WC. V čele chodby vstoupíme do prostorného, světlého obývacího pokoje s přípravou na kuchyňský kout. Zde jsou francouzská okna do zahrady. Dům je postaven s ohledem na ekologii a energetickou úspornost. Vytápění i ohřev vody zajišťuje moderní tepelné čerpadlo se systémem podlahového vytápění, které udržuje komfortní teplotu v celém interiéru. Dále je dům napojen na obecní vodovod a odpad je řešen vlastní čističkou odpadních vod. Pro útulnost domova je možné připojit i krbová kamna. V rámci ceny nejsou zahrnuty zařizovací předměty, podlahy, dveře, dlažby a obkladové materiály tak, aby každý zájemce mohl dokončit interiér dle vlastního vkusu a možností. Dokončení interiéru je možné domluvit přímo s developerem nebo vlastním dodavatelem. Obec Srbeč nabízí mladým rodinám příjemné a bezpečné prostředí pro život. V blízkosti se nachází mateřská školka, lékařská péče a knihovna, která pro vaše děti poskytne bohaté kulturní vyžití. V letních měsících můžete využívat místní koupaliště a okolní přírodu k rodinným aktivitám. S dopravní dostupností na dálnici D6 a D7, kde cesta do centra Prahy trvá pouhých 35 minut, budete mít vše potřebné na dosah ruky, ať už do města, nebo na výlety do přírody. Rozkládá se na rozhraní okresů Rakovník, Kladno a Louny. Do všech tří okresních měst je přibližně stejně daleko, asi 25 km, obec patří k okresu Rakovník. Přijďte se podívat na tuto mimořádnou příležitost pro vaši rodinu! V případě zájmu o prohlídku nás neváhejte kontaktovat.


