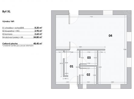
Prodej - dům/vila, 95 m²
Moderní nízkonákladový rodinný dům 4+kk, Solnice Kvasiny (dům č. 19)
Hledáte klidné, moderní a ekologické bydlení? Tak zbystřete! V oblíbené a klidné lokalitě Solnice Kvasiny na vás čeká novostavba rodinného domu 4+kk o podlahové ploše 95 m², postavená na pozemku 199 m². Tento nízkoenergetický dům s hodnocením PENB A kombinuje stylovou architekturu s kvalitními materiály včetně perfektního zateplení. To vše doplněné solárními panely, které šetří vaši peněženku i planetu. Dispozice 4+kk je ideální pro mladou rodinu nebo pár, kteří chtějí klidné a pohodové bydlení. Efektivní dvě podlaží znamenají přirozené oddělení denní a noční části domu. Vychytávky, které si zamilujete: ✅ Možnost čerpání dotace Zelená úsporám až do výše 400.000 Kč – usnadní vám cestu k vlastnímu bydlení ✅ Soukromé parkovací stání přímo u domu ✅ Dům je obklopen malebnou zelení i blízkým rybníkem Lokalita, která má co nabídnout: 5 minut autem do Škoda Auto Kvasiny – ideální pro zaměstnance Vše potřebné po ruce – obchody, školka, škola, MHD i vlak Klidná a bezpečná ulice – ideální pro děti i domácí mazlíčky Nyní akční cena v rámci předprodeje. Za tuhle cenu získáte pohodové, zdravé a úsporné bydlení v krásné přírodě. Zavolejte mi nebo napište a domluvíme si prohlídku. Domy v této lokalitě se neohřejí dlouho!


