Prodej - dům/vila, 198 m²
Prodej RD - ubytovacího zařízení 198m2, ul. Odboje, Sokolov
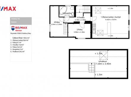
Prodej prostorného 2 podlažního domu s podkrovím v samém centru Sokolova o rozloze 198 m². Je ideálním řešením pro ty, kteří hledají rodinnou pohodu nebo výhodnou investici s rychlou návratností. Pro ty, kteří chtějí bydlet a podnikat ve vlastním domě. Stav: Nová elektroinstalace a komunikace Napojení na městskou kanalizaci Plynové vytápění a ohřev vody (nový kotel + radiátory) Plastová okna Nová střecha a okapy Balkon-terasa v 1. patře Dům potřebuje lehké kosmetické opravy a renovaci fasády. Funkčnost: Vhodné jak pro velkou rodinu, tak pro částečný pronájem Možnost pohodlného bydlení v jednom patře a pronajímání dalších místností Lokalita - lepší místo si snad ani nelze představit: Centrum města Výhodná infrastruktura Doprava, obchody, školy - vše v blízkosti Dům v centru Sokolova - pro život, investici i budoucnost- vhodný pro ty, kteří umí vidět hodnotu a proměnit ji v zisk. Zavolejte a zjistěte více informací a domluvte si prohlídku. Prodávající si vyhrazuje právo vybrat kupujícího na základě jím zvolených kritérií.


