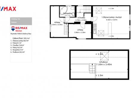
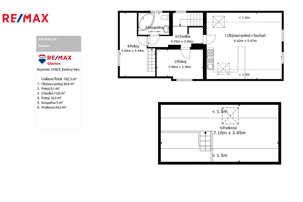
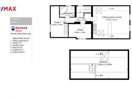
Prodej - kanceláře, 198 m²
Prodej komerčního objektu 198m2 pro ordinace, výrobu, ubytování, ul. Odboje, Sokolov
Prodej prostorného 2 podlažního domu s podkrovím v samém centru Sokolova o rozloze 200 m². Je ideálním řešením pro ty, kteří hledají výhodnou investici s rychlou návratnost, jako například zubní ordinace nebo jiné zdravotní zařízení. Stav: Nová elektroinstalace a komunikace Napojení na městskou kanalizaci Plynové vytápění a ohřev vody (nový kotel + radiátory) Plastová okna Nová střecha a okapy Balkon-terasa v 1. patře Dům potřebuje lehké kosmetické opravy a renovaci fasády. Funkčnost: Zubní, zdravotní ordinace, foto studio, reklamní studio, vyučovací centrum, ubytování, kosmetické služby, masáže a pod. Vhodné jak pro velkou rodinu, tak pro pronájem. Možnost pohodlného bydlení v jednom patře a pronajímání dalších místností. Otázka pozemku vyřešena: Lokalita - lepší místo si snad ani nelze představit: Centrum města Výhodná infrastruktura Doprava, obchody, školy - vše v blízkosti Dům v centru Sokolova - pro život, investici i budoucnost- vhodný pro ty, kteří umí vidět hodnotu a proměnit ji v zisk. Zavolejte a zjistěte více informací a domluvte si prohlídku. Prodávající si vyhrazuje právo vybrat kupujícího na základě jím zvolených kritérií.


