Pronájem - dům/vila, 61 m²
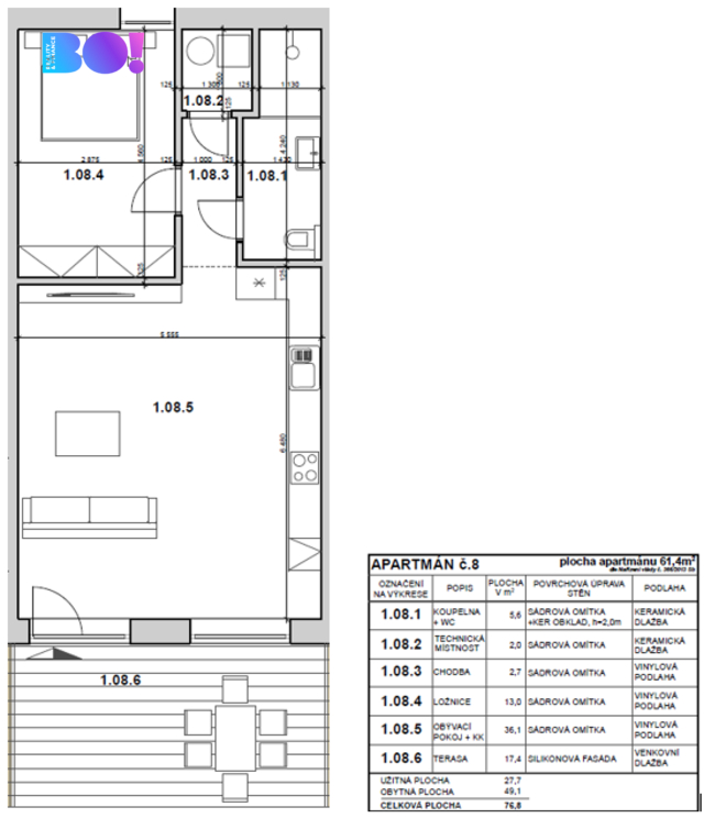
Pronájem řadového rodinného domu 2+kk, 61,4 m², Horní Soběšovice
Hledáte místo, kde budete mít přírodu, vodu a slunce doslova na dosah? BO! Reality vám s velkou radostí představuje k pronájmu zcela nový řadový rodinný dům o dispozici 2+kk a podlahové ploše 61,4 m², nacházející se v srdci Horních Soběšovic, jen pár kroků od přehrady. Ideální pro ty, kteří milují klid, procházky u vody, ranní slunce na terase a večerní západy s vůní lesa. Místo, kde si odpočinete, nadechnete se a budete opravdu doma. Dispozice a vybavení: Kompletně nový a plně vybavený apartmán 2+kk 61,4 m² a terasa 17,4 m². Kuchyně na míru včetně moderních spotřebičů: lednice s mrazákem, mikrovlnná trouba, elektrická trouba, varná deska, myčka nádobí a digestoř. V kuchyni stůl a židle, v obývacím pokoji pohodlný gauč a konferenční stolek. Ložnice s postelí a nočními stolky – připravená k nastěhování. Koupelna s pračkou, sušičkou a žebříkovým radiátorem. Podlahové topení pro maximální komfort po celý rok. Klimatizace pro horké letní dny. Alarm a trezor pro vaše bezpečí a klid. Parkovací místo přímo před domem. Lokalita a okolí: Příroda a voda na dosah: procházky kolem přehrady, běhání, cyklostezky, paddleboard, koupání, rybaření. Slunné dny u vody a večery s výhledem – dokonalé místo pro relax i aktivní život. Občanská vybavenost v blízkém okolí: obchody, kavárny a restaurace, dětská hřiště, základní občanské služby. Dobrá dostupnost do okolních měst, klidná a bezpečná lokalita. Podmínky nájmu: Nájem: 35.000 Kč měsíčně. Záloha na služby: 5.000 Kč (voda, elektřina). Vratná jistota (kauce) ve výši tří měsíčních nájmů a administrativní poplatek realitní kanceláři ve výši jednoho měsíčního nájemného + DPH. Možnost trvalého pobytu a vhodné k dlouhodobému bydlení. Tento řadový rodinný dům je ideální volbou pro jednotlivce, páry i ty, kdo hledají druhý domov u vody. Pokud chcete žít v harmonii s přírodou a mít přitom veškerý komfort moderního bydlení, ozvěte se – rádi vás provedeme. Srdce vás sem přivede, klid a slunce si vás tu udrží. BO! spolu tvoříme příběhy...


