Prodej - nájemní dům, 406 m²
Polyfunkční dům v centru Soběslavi
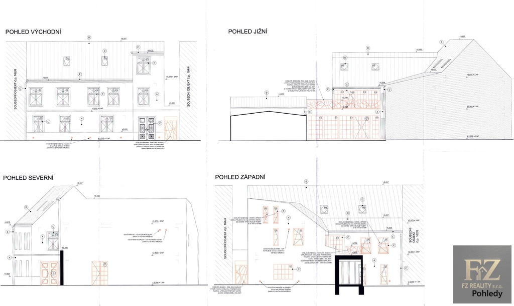
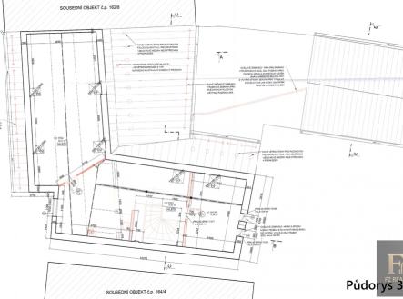
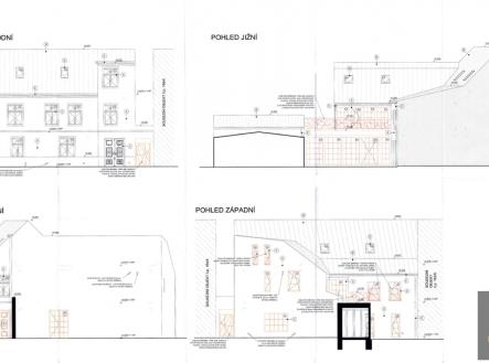
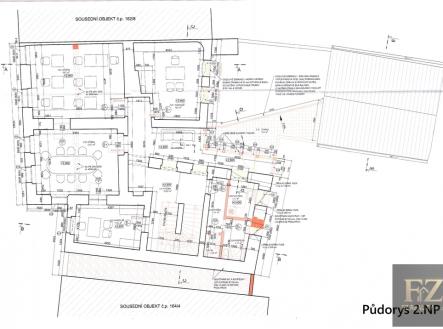
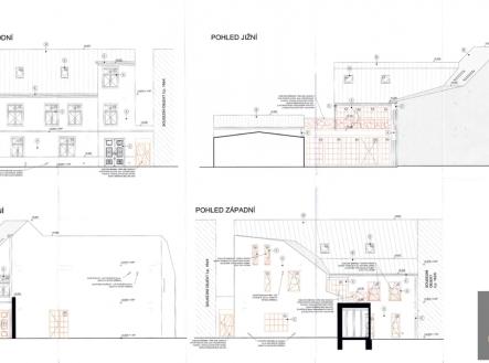
Jedinečná investiční příležitost v samotném srdci Soběslavi. V historickém centru města, jen pár kroků od náměstí, nabízíme polyfunkční objekt, který zaujme polohou, velikostí i širokou variabilitou budoucího využití. Nemovitost je ideální volbou pro investora, který hledá kombinaci stabilního výnosu, atraktivní komerce a možnosti rezidenčního zhodnocení v centru města. V katastru je stavba vedena jako občanská vybavenost, zároveň však disponuje platným stavebním povolením na rekolaudaci na prodejnu a jazykovou školu. Díky tomu je možné navázat na připravený záměr, případně využít objekt ještě flexibilněji. Namísto školy lze vybudovat obchodní dům, nebo tři bytové jednotky o celkové ploše 160 m², dále schválenou prodejnu o ploše 120 m² a ateliér/kanceláře o ploše 88 m². Nachází se zde také objekt ve dvoře, ve kterém se přímo nabízí možnost vytvoření menšího zázemí, například wellness prostoru o ploše 30 m². Objekt je cihlová stavba o třech podlažích s celkovou užitnou plochou 406 m², přičemž 1. NP má 172 m², 2. NP 146 m² a 3. NP 88 m². Celková plocha pozemku činí 296 m². Budova je napojena na veřejný vodovod i kanalizaci, je v dobrém technickém stavu a především suchá. Rekonstrukce je již zahájena a na objektu se stále pracuje. Veškeré klenby v přízemí jsou nově omítnuty a hotové jsou i některé omítky stěn. To dává budoucímu projektu jasný náskok. Kompletní projektová dokumentace je k dispozici a zároveň je možné případnou bytovou variantu řešit formou změny stavby před dokončením, což otevírá prostor pro úpravu záměru dle preferencí investora a aktuální poptávky. K domu náleží i “soudka“, kterou má vzniknout další vstup do budovy. To může výrazně pomoci funkčnímu rozdělení jednotlivých částí objektu, oddělení komerčního provozu od rezidenční části a celkovému komfortu užívání. Parkování je možné v okolních ulicích i na přilehlých parkovištích. Soběslav nabízí kompletní občanskou vybavenost a velmi příjemné městské zázemí. Z domu jste pěšky během chvíle na náměstí, poliklinice, nádraží, poště, u škol i školky. Skvělou přidanou hodnotou je také výborná dopravní dostupnost s rychlým napojením na dálnici D3 a snadným dojezdem do Tábora, Českých Budějovic i Prahy. Pro více informací a domluvu prohlídky mě neváhejte kontaktovat.


