Prodej - dům/vila, 119 m²
Prodej rodinného domu ve Šlapanicích u Brna - klidná lokalita, prostorné bydlení
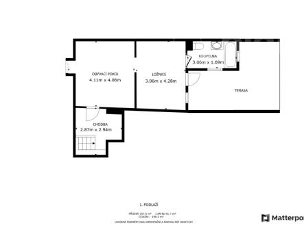
Nabízíme k prodeji velmi pěkný rodinný dům v klidné a slepé ulici ve Šlapanicích, jen 5 km od hranice Brna. Dům disponuje 5 pokoji, kuchyňským koutem, průjezdem a zastřešeným dvorkem. V přední části se nachází upravená zahrada ideální k posezení či grilování. Dispozice domu: 1. NP: vstup do předsíňky s kuchyňským koutem, na kterou navazuje prostorný obývací pokoj, průchozí pokoj, další samostatný pokoj, koupelna, toaleta a vstup na uzavřený dvorek. 2. NP: po schodišti se dostanete do průchozího pokoje, dále do ložnice s koupelnou a WC. Z ložnice je vstup na zastřešenou část domu a následně na otevřenou terasu s příjemným výhledem. Lokalita: Město Šlapanice nabízí kompletní občanskou vybavenost - školy, školky, obchody, restaurace, zdravotní péči i sportovní vyžití. Díky skvělé dopravní dostupnosti je ideálním místem pro klidné rodinné bydlení s výhodou blízkosti Brna.


