Prodej bytu, 3+kk, 104 m²
Prodej ateliéru 83,2m2
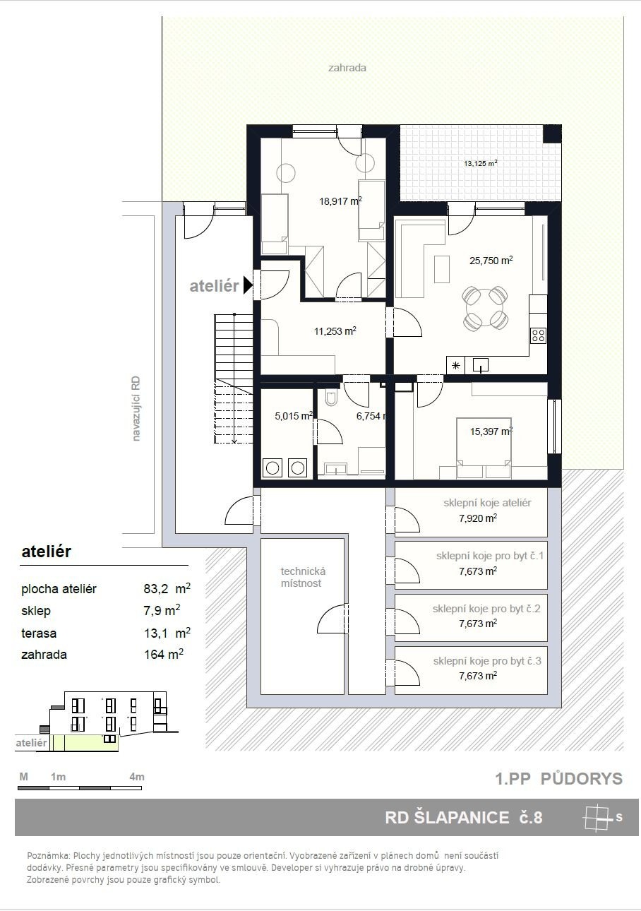
V rámci projektu Nové Šlapanice, který vyrůstá na okraji města Šlapanic si Vám dovolujeme představit výjimečné a na danou lokalitu ojedinělé bydlení. Představujeme Vám 3.etapu, která je zaměřena na výstavbu 4 viladomů, se 3 bytovými jednotkami a ateliérem. Je to ideální místo pro ty, kteří hledají kvalitní, moderní, prostorné a dispozičně chytře řešené bydlení. V tomto projektu nabízíme k prodeji ateliér 3+KK s terasou a zahradou. Součástí prodeje bytu je kuchyňská linka, dělaná na míru. K bytu náleží i sklep 7,9m2 a 1 parkovací stání, která jsou součástí kupní ceny. Možnost dokoupení dalšího parkovacího stání za cenu 200.000,-Kč. V celém bytě jsou venkovní žaluzie. Viladům č.8 na ulici Stanislava Hanzelky Byt č.3 o celkové ploše je umístěn v 1.PP Dispozice: chodba 11,25m2, obývací pokoj s kuchyňským koutem 25,75m2, ložnice 18,91m2, dětský pokoj 15,39m2, koupelna se sprchovým koutem včetně WC 6,75m2, technická místnost 5,01m2. Z obývacího pokoje přes terasu o výměře 13,12m2 na zahradu 164m2. Standarty bytu, které jsou součástí kupní ceny: - podlahy vinyl, keramická dlažba - koupelna - sanitární technika, 1x umyvadlo včetně baterie, sprchový kout, včetně WC, zrcadla, obklady - mramor - interiérové dveře + obložkové zárubně, vstupní dveře - podlahové vytápění, topné těleso - venkovní světla - příprava na klimatizaci - kuchyňská linka Samotná lokalita nabízí širokou škálu pracovních možností a veškerou potřebnou občanskou vybavenost a výbornou dojezdnost díky dálnici D1 a D2. Také zde v docházkové vzdálenosti nalezneme školu, školku, řadu obchodů, restaurací a služeb, trolejbusovou zastávku, ale především vlakové nádraží, z kterého jste na Hlavním vlakovém nádraží v Brně va 15 min. Dokončení bytů je plánované na konec roku 2026. Výhodou je model financování nemovitosti. Pokud by Vás nabídka tohoto či jakéhokoliv jiného bytu v tomto projektu zaujala, kontaktujte prosím makléře, u kterého se dozvíte více. Děláme moderní bydlení dostupnější. Kupní cena nezahrnuje provizi RK. Více o projektu na našich webových stránkách www.viladomy-slapanice.cz


