Prodej - výrobní prostor, 665 m²
Prodej výrobní haly, prostoru 665 m², pozemek 1589m², Pražská, Slaný
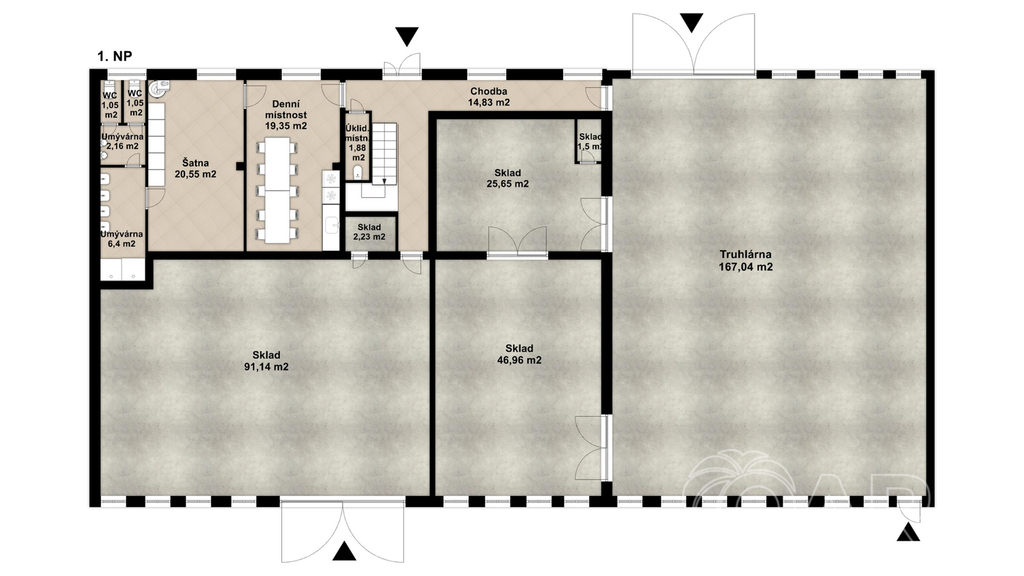
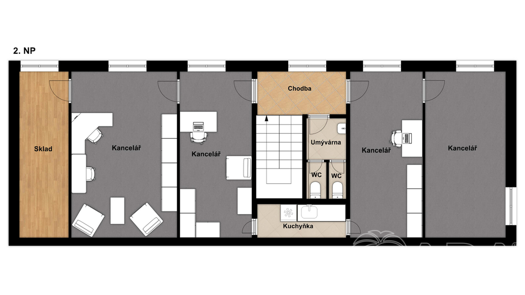
Nabízíme k prodeji výrobní halu s kompletním zázemím, aktuálně využívanou jako truhlárna, umístěnou v zabezpečeném areálu. Objekt je ve funkčním technickém stavu, vhodný k okamžitému využití a nabízí široké možnosti dalšího podnikání. Dispozice a technické řešení: 1. nadzemní podlaží – 568 m² výrobní prostory technické zázemí šatny pro zaměstnance jídelna skladové a obslužné prostory sociální zázemí (WC, sprchy) 2. nadzemní podlaží – 95,5 m² kancelářské prostory - celkem 4 kanceláře + prostor pro kartotéku kuchyňka WC Hala má železobetonový stropní systém s hurdiskovými vložkami (žebrovaný strop), který zajišťuje dobrou únosnost i dlouhou životnost konstrukce. Objekt je dostatečně světlý, s kvalitním umělým osvětlením a přirozeným denním světlem. Technický stav a vybavení: nová střecha (2023) bezpečnostní systém napojení na veškeré inženýrské sítě nízké měsíční provozní náklady cca 15 000 Kč (elektřina, plyn, vodné/stočné) Venkovní plochy: parkování v přední části objektu zpevněná plocha za halou o výměře 965 m², aktuálně pronajatá (výpovědní doba 3 měsíce) – vhodná pro manipulaci, skladování nebo budoucí rozšíření provozu Díky své dispozici, technickému stavu a umístění je objekt vhodný pro: lehkou výrobu dílnu nebo servisní provoz skladování a logistiku montážní nebo kompletovací činnost provoz e-shopu s vlastním zázemím kombinaci výroby, administrativy a skladů zázemí pro řemeslnou nebo technickou firmu Nemovitost představuje zajímavou příležitost jak pro vlastní podnikání, tak i pro investory hledající stabilní komerční objekt s nízkými provozními náklady.


