Prodej - dům/vila, 225 m²
Rodinný dům 5+kk s dvojgaráží, terasou a bazénem – Sibřina u Prahy
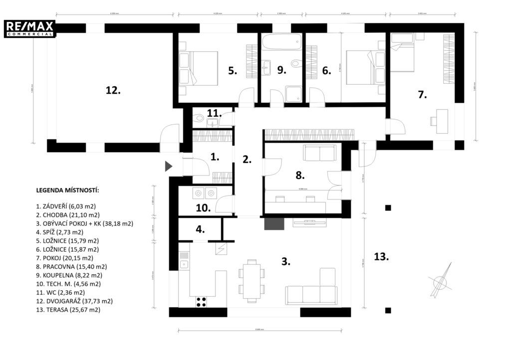
Novostavba přízemního rodinného domu o dispozici 5+kk a užitné ploše 225,85 m² (obytná plocha 188,12 m² + garáž 37,73 m²) stojí na pozemku o výměře 1195 m² v klidné části obce Sibřina (u Křenice), u Prahy. Nabízí nadstandardní komfort, soukromí a výborné napojení na metropoli. Hlavní přednosti: • Dispozice a velký prostor – dům poskytne dostatek místa vám i celé rodině. Místnosti jsou světlé a s příjemně vysokými stropy. Obývací pokoj navazuje na zastřešenou terasu, kde můžete trávit celé léto. • Zahrada jako oáza klidu – pečlivě udržovaná zeleň, kamenné ohniště, bazén s krytím a terasy. Oplocení a vzrostlá zeleň vytváří naprosté soukromí. Část zahrady je upravená v japonském stylu, kde se můžete ztratit před zraky rodiny a relaxovat. • Zázemí – Dvojgaráž, technická místnost a spižírna, k tomu další objekt sloužící jako dílna na zahradě. • Novostavba bez nutnosti investic – Dům byl dokončen před pár lety, je ve výborném technickém stavu a připravený k okamžitému bydlení. Můžete se tak nastěhovat a nestresovat se dalšími investicemi. Dispozice: Předsíň navazuje na chodbu, ze které je přístup do všech obytných místností. Dominantou je prostorný obývací pokoj s kuchyňským koutem a vstupem na krytou terasu orientovanou na severovýchod. Dále se v domě nachází tři ložnice, pracovna (také se vstupem na terasu), koupelna s vanou a sprchovým koutem, samostatné WC, technická místnost a spižírna. Garáž pro dvě auta je součástí domu. Součástí pozemku je také samostatný objekt (dílna) se dvěma místnostmi (po 11 m²). Technické parametry: Dům je postaven v moderním standardu s důrazem na kvalitu provedení, úsporu energií a dlouhou životnost konstrukcí. Nosné stěny jsou z cihel Porotherm o tl. 30 cm, zateplené 20 cm polystyrenu. Střešní krytinu tvoří betonová taška. Okna jsou plastová s trojskly s předokenními žaluziemi. Vytápění domu je řešeno podlahovým topením v kombinaci s krbem v obývacím pokoji. V každé místnosti je termostat pro individuální nastavení teploty. Garáž je vytápěná pomocí radiátorů, takže ji lze využívat i v zimě. Zdrojem tepla je plynový kondenzační kotel. Dům je napojen na všechny inženýrské sítě – tlakovou kanalizaci, obecní vodovod a plyn. Kamerový zabezpečovací systém zvyšuje pocit jistoty a ochrany majetku. Na zahradě se nachází bazén o rozměrech 8 × 4 metry a hloubce 1,4 metru. Je vybaven posuvným krytím, protiproudem, tepelným čerpadlem a technologií slané vody. Lokalita: Sibřina leží na východním okraji Prahy, v oblíbené rezidenční lokalitě s výborným napojením na hlavní město. Na metro Depo Hostivař nebo Háje dojedete autem za 15 až 20 minut. V okolí je mateřská i základní škola, potraviny, restaurace, sportoviště a cyklostezky. Lokalita tak kombinuje klid venkova a blízkost metropole. Závěr: Další informace Vám makléř rád sdělí po telefonu, formou podrobné prezentace nebo při osobní prohlídce.

