Prodej - dům/vila, 164 m²
Prodej rodinného domu, 164 m², Šenov, ul. Větrná
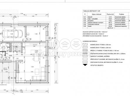
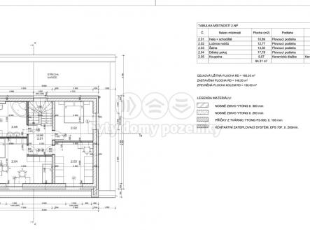
Nabízíme vám k prodeji rodinný dům zkolaudovaný v roce 2019 v Šenově, na ulici Větrná. Nadstandardně vybavený rodinný dům stojí ve slepé ulici, což zajišťuje klid a soukromí. V domě najdete veškeré moderní vybavení jako je Jablotron zabezpečení, kamerový systém, elektrické rolety, bazén a mnohem víc. V 1. podlaží se nachází garáž pro 1 auto s technickou místností, dále po vstupu do domu najdete menší předsíň, koupelnu se sprchovým koutem a WC, velmi prostorný obývací pokoj s kuchyní a jídelnou. Ve 2. podlaží se nachází 3 pokoje a koupelna s vanou, sprchovým koutem a wc. V ložnici je možnost dostavění balkonu. O teplo se stará tepelné čerpadlo a podlahové topení, zároveň je dům napojen na veřejný vodovod a kanalizaci. U domu je parkovací stání až pro 4 auta. V roce 2024 byl vybudován bazén s přístřeškem. Doporučujeme prohlídku. Pro více informací volejte makléře.


