Prodej - dům/vila, 137 m²
Exkluzivní desigový dům novostavba v obci Senice na Hané u Olomouce, 137 m2, pozemek 587 m2
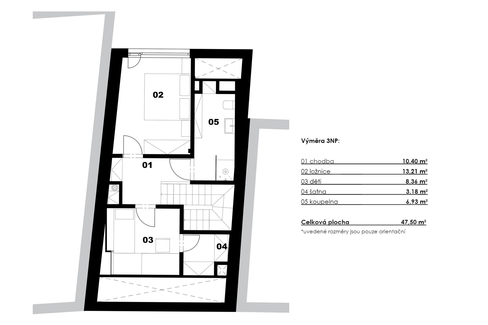
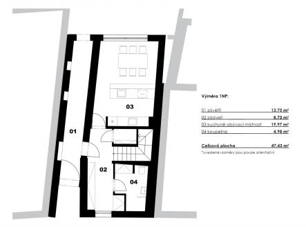
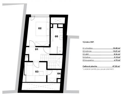
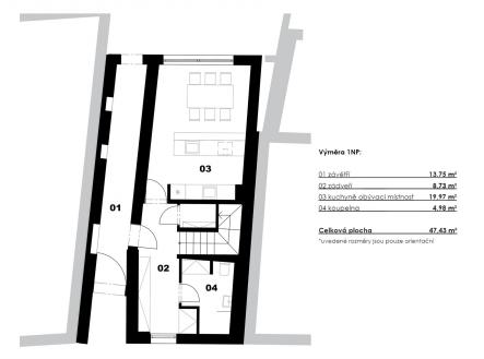
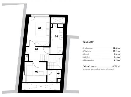
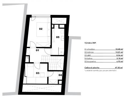
Představujeme Vám k prodeji exkluzivní novostavbu v obci Senice na Hané, reprezentující moderní architektonický koncept spojený s prvotřídními materiály a technologiemi. Jedná se o čtyřpokojový třípodlažní dům s otevřeným obývacím prostorem nad kuchyní a výhledem do zahrady v úsporné třídě B, dokončený a zkolaudovaný v roce 2023. Projekt domu byl zpracován architekty z ateliéru Tři.čtrnáct. Dům byl vybrán a publikován v uznávané architektonické knize 66 domů, která představuje to nejlepší ze současné architektury. Při vstupu z ulice najdete exteriérovou chodbu, vedoucí na zahradu a zároveň i do domu. Dispozice zahrnuje vstupní zádveří s šatními skříněmi, prosklenou kuchyni s otevřeným stropem, jídelnou a vstupem na terasu, dále koupelnu se sprchovým koutem a komoru s úložným prostorem. Schodiště vás zavede do druhého nadzemního patra s otevřeným obývacím prostorem, technickou místností a dětským pokojem s vestavěnou skříní. V podkroví, tedy 3. patře tohoto domu naleznete druhý dětský pokoj s velkým střešním ateliérem a šatnou, ložnici s rozsáhlou vestavnou skříní a druhou koupelnu. Pro úsporu energie je dům vybaven tepelným čerpadlem, sloužícím k vytápění a ohřevu vody, a také systémem rekuperace pro efektivní výměnu vzduchu. Dům je navíc ale také v obývacím pokoji vybaven designovými krbovými kamny zn. Jotul. Interiérové prvky nesou razantní podpis kvality, včetně masivních prvků z jasanu, bezzárubňových dveří s křídly z masivního dřeva v laku a kuchyňské linky taktéž v laku. Vybavení kuchyně zahrnuje spotřebiče od značky Siemens, desku z umělého kamene a podlahy z polyuretanu. Koupelna disponuje prvky od špičkových výrobců. Dům je vybaven izolací z PUR pěny, protihlukovými předstěnami a příčkami (systém Rigips). Střecha je osazena velkoformátovými střešními ateliéry z hliníku, včetně odrazové úpravy, motorů pro pohodlné otevírání a screen rolety na jižní straně, zajišťující optimální komfort a efektivitu. Exteriér domu zaujme terasou z kvalitního sibiřského modřínu, plotem s prémiovou lazurou, zahradním domkem a přípravou pro přístřešek na auto. K domu je navíc zpracovaný i projekt od zahradního architekta. Díky využívání nízkoenerg. štítku a inovativních technologií dochází k výraznému snížení měsíčních životních nákladů. Tato kombinace umožňuje udržet měsíční výdaje pod hranicí 3000 Kč. Dům bude ideální volbou pro ty, kteří hledají spojení moderního bydlení s klidem okolní krajiny, nese v sobě harmonickou kombinaci moderní architektury, energ. efektivity a nadstandardního vybavení. Tato nemovitost se nachází v obci s veškerou občanskou vybaveností, včetně školy, školky, obchodu, sportoviště i pošty. Dostupnost na dálnici a do Olomouce je na dosah. Na tuto nadstandardně vybavenou nemovitost je možné využít financování za nejvýhodnějších podmínek se snižováním úrokové sazby. Pokud jste tedy vždy snili o domově, který spojuje nejmodernější technologie se špičkovými materiály a luxusem, máme pro vás jedinečnou příležitost!


