Prodej - hotel, 3 572 m²
Prodej Hotelu Delta u Sečské přehrady - 2642 m2
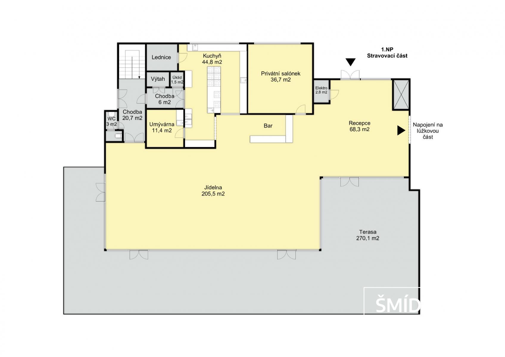
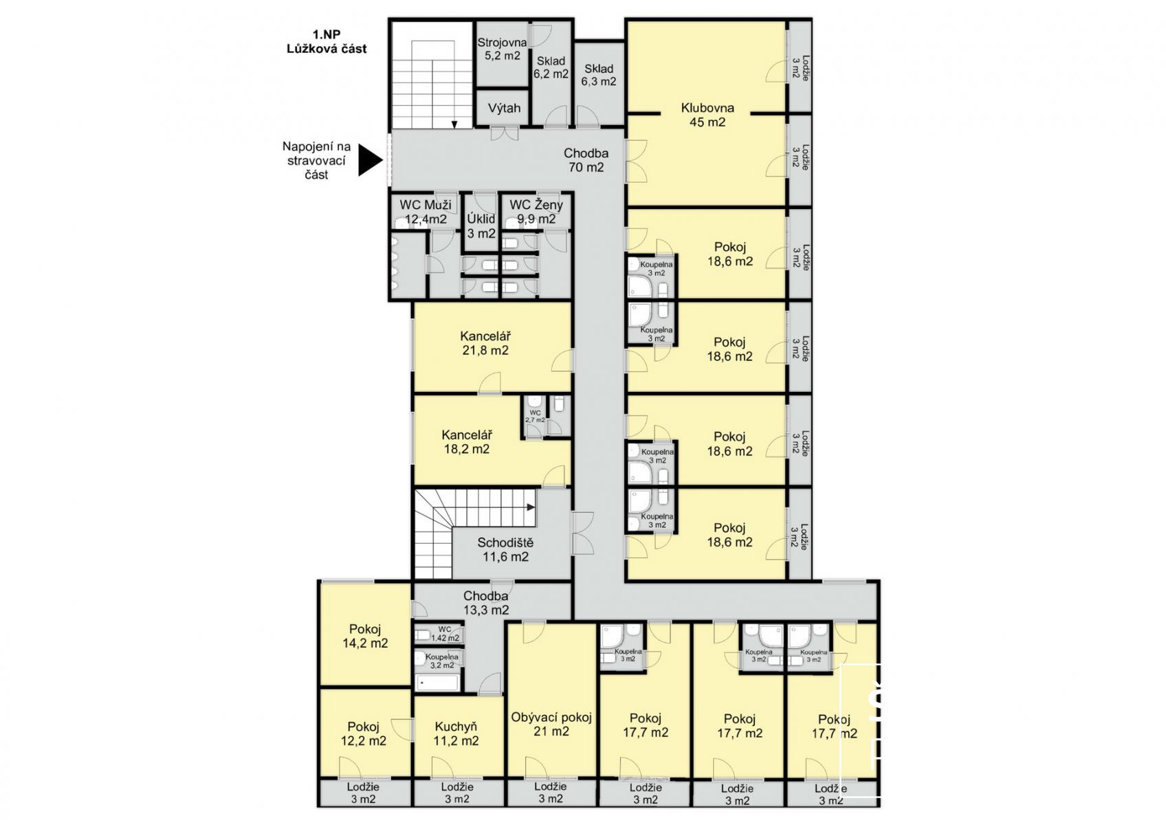
Dobrý den, dovoluji si Vám nabídnout ke koupi jedinečnou nemovitost - ubytovací zařízení Hotel Delta Seč. Jak již název napovídá, hotel se nachází poblíž Sečské přehrady a to pouhých 150 metrů od břehu. Nemovitost prošla kompletní rekonstrukcí a modernizací. V současné době disponuje 39 pokoji s vlastními lodžiemi, dvěma apartmány, restaurací s venkovní terasou, vybavenou industriální kuchyní, zasedacími místnostmi, společenským sálem, kompletní pracovním i kancelářským zázemím pro zaměstnance a parkovištěm pro hosty. Kvůli své lokalitě je Hotel Delta skvělým lákadlem pro zákazníky všech věkových skupin, kteří hledají ubytovaní poblíž malebné Sečské přehrady. Díky svým konferenčním prostorům je hotel také idealním místem pro firemní klientelu. Pro sjednání prohlídky či více informací mě neváhejte kontaktovat.


