Prodej - dům/vila, 160 m²
Novostavba bungalovu 4+kk se dvěma koupelnami v Sadově u Karlových Varů
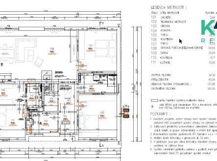
Nabízíme k prodeji moderní novostavbu bungalovu 4+kk, který situován v klidné obytné lokalitě v blízkosti lesa a 7 minut do Karlových Varů, jenž poskytuje ideální možnosti pro rodinné bydlení. Pozemek o velikosti 690 m2 nabízí dost prostoru pro realizaci vysněné zahrady. Dům 4kk s užitnou plochou 160 m2 je řešen prakticky, vybaven kvalitními materiály a moderními technologiemi. Splňuje nároky na energetickou úspornost s certifikací A. Dispozice této nemovitosti je řešená velmi intuitivně. Z předsíně se po pravé straně nachází technická místnost, kde je srdce domu se zabudovanou fotovoltarikou jako zdroj tepla a také bojler. Vedle se nachází spíž pro uložení potravin. Naproti je první pokoj, který sousedí s koupenou. Dále po pravé straně poskytuje pohodlí s výhledem do zahrady druhý pokoj. Společenská místnost s krbovými kamny (výkon 12-14 kW), klimatizací a prostorem pro kuchyňskou linku je situovaná na jižní stranu. Celý tento prostor má dva vstupy na zahradu. Podlahy ve společenské místnosti jsou pokryté vinylem o tloušťce 1 cm, v ložnicích se projdeme po laminátu o tloušťce 1 cm a v technických místnostech se nachází dlažba. V celém domě je položeno pro podlahové topení (folie a kabel) a zabudované termostaty ovládané přes Wi-Fi, jenž zajišťuje příjemné teplo v každém ročním období. Topení je doplněno klimatizací, která nabízí jak chlazení, tak vytápění, což přispívá k maximálnímu komfortu bydlení. K ohřevu vody slouží elektrický bojler o objemu 250 litrů, což zajišťuje dostatek teplé vody pro celou rodinu. V obývací části se nacházejí krbová kamna, která dodávají domu příjemnou atmosféru a dodatečné teplo během chladnějších měsíců. Dům je osazen solárními panely o výkonu 8 kW se záložní baterií na 12 kW k uložení nebo na prodej, které umožňují využívat sluneční energii a tím snižovat náklady na elektrickou energii. Bezpečnostní systém zahrnuje alarm ovládaný též dálkově. V pěší vzdálenosti se nachází obecní úřad, kulturní dům, MŠ, ZŠ 1.st., obchod s potravinami, pošta. Tato nemovitost je ideálním místem pro ty, kteří hledají komfortní a moderní bydlení v přírodě a zároveň pár minut do města s vysoce efektivním provozem. V případě zájmu o prohlídku nás neváhejte kontaktovat.


