Prodej - dům/vila, 219 m²
Prodej rodinného domu v Rudné u Prahy
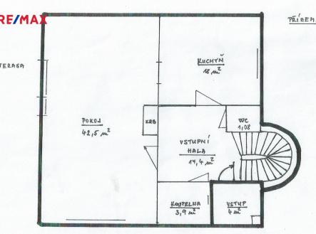
Exkluzivně nabízíme samostatně stojící rodinný dům s dvougaráží a pozemkem s potenciálem další stavby, na atraktivním rušném místě, přímo v obci Rudná u Prahy, 7 minut jízdy autem do nákupního centra Zličín a stanice metra. Cihlový dům je rozložen do dvou nadzemních podlaží a jeho celková užitná plocha je 219 m2, a to včetně dvougaráže o výměře 48 m2 a kotelny 9 m2. V prvním nadzemním podlaží je vstupní hala 14,5 m2, velký obývací pokoj 42,30 m2 s vnitřním krbem, kuchyň s jídelnou 18 m2. Z obývacího pokoje je vstup na terasu s venkovním krbem. K obývacímu pokoji je přilehlá koupelna s umyvadlem a sprchovým koutem. Vstupní hala má samostatné WC. Ve druhém nadzemním podlaží jsou čtyři pokoje o výměře 23 m2, 21 m2, 10,5 m2 a 8,8 m2. Dále pak šatna 2,6 m2, koupelna s umyvadly a vanou 8m2, samostatné WC a vstup na půdu. Dům je opatřen plastovými okny se žaluziemi a bezpečnostními skly. Dům je napojen na všechny inženýrské sítě. Zahrada je ze tří stran obklopena živým plotem, který zajišťuje privátní prostředí. Směrem do ulice je plot zděný, zbývající tři strany chrání plot drátěný. Nově instalované ústřední topení je napojeno na plynový kotel Buderus, který je umístěn se zásobníkem na teplou vodu ve sklepě domu. V této místnosti je umístěno rovněž čerpadlo určené k čerpání vody ze zahradní studny a zalévání zahrady. Nemovitost je vzhledem k umístění ideální pro rodinné bydlení. Členění vily lze využít rovněž jako sídlo firmy. V blízkosti nemovitosti se nachází veškerá občanská vybavenost, včetně moderní polikliniky, kde jsou zastoupeny všechny zdravotní specializace.

