Prodej - skladovací prostor, 600 m²
Prodej skladového prostoru s bytem, 600 m2, Rozsochatec
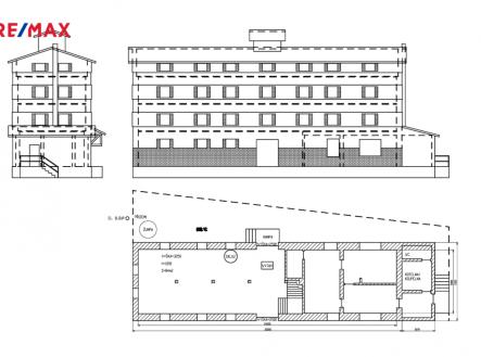
V těsné blízkosti vlakového nádraží Vám nabízíme k prodeji skladový a výrobní prostor o užitné ploše 600 m2 s okolními pozemky o ploše 1154 m2. V budově se nachází původní a stále funkční výtah a skluzavka na pytle. Nosnost jednotlivého patra je 60 tun. V roce 1999 proběhla na budově rekonstrukce střechy. Součástí prodeje je kompletní projektová dokumentace na rekonstrukci budovy a závazná stanoviska dotčených orgánů. Příjezd po obecní asfaltové komunikaci. Bezproblémové parkování na vlastních pozemcích. Součástí budovy je bytová jednotka o dispozici 2+1 o užitné ploše 75m2. Byt má samostatný vstup a je určen k rekonstrukci. Napojeno na elektřinu a vodovod. Plynová přípojka se nachází na hranici pozemku. Více informací u makléře nabídky


