Prodej - dům/vila, 215 m²
Prodej RD 3+1 a 2+1 v Rozdrojovicích, 215 m2 , celková plocha 946 m2
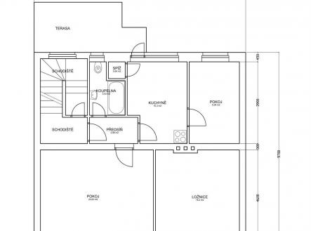
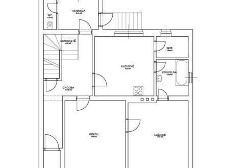
V zastoupení majitele nabízíme k prodeji dvougenerační rodinný dům v Rozdrojovicích. Původně jednopodlažní, částečně podsklepený cihlový dům pocházející z roku 1960 byl v roce 1975 rozšířen o druhé nadzemní podlaží. Vznikly tak dvě bytové jednotky se společným vstupem, kdy v prvním nadzemním podlaží je umístěný byt o velikosti 2+1 se sociálním zařízením, přístupem do sklepa a na dvůr. Ve druhém NP je umístěn byt o velikosti 3kk se sociálním zařízením a s terasou situovanou do zahrady. Přístup na půdu umožňuje schodiště přístupné z předsíně. Dům je určen ke kompletní rekonstrukci a jeho potenciál lze využít pro větší rodinu, nebo k investici a přestavbě s rozšířením o půdní byt. Dům je vytápěn společným ústředním plynovým kotlem, ohřev vody v jednotlivých bytech zajišťují samostatné el. bojlery. Dům je napojen na obecní vodovod a kanalizaci, elektřina včetně 380V. Na dům navazuje dvorek s garáží, zahrada je rovinatá, oplocená, sousedící s dalšími zahradami. Na pozemku jsou umístěny další drobné stavby poskytující zázemí pro péči o dům a zahradu. Rozdrojovice jsou menší obcí, která se stala vzhledem k těsné blízkosti od Brna (5 km BrnoBystrc), výborné dopravní dostupnosti a skvělé lokalitě s možnostmi rekreačního vyžití (Brněnská přehrada, lesy, cyklostezky), velmi žádanou lokalitou. V obci je smíšený obchod, MŠ, ZŠ do 5. třídy, hostinec, Wellness hotel Atlantis, řemeslný pivovar, nová tělocvična a jsou zde pořádány různé kulturní akce. Pokud vás nabídka zaujala, zvažujete dvougenerační bydlení, nebo máte velkou rodinu, či podnikatelský záměr, neváhejte se na mě obrátit a využít této příležitosti. Budu se na vás těšit.


