Prodej - dům/vila, 152 m²
Prodej moderního rodinného domu CP 152 m² s garáží - ulice Sadová, Rousínov
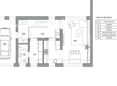
Nabízíme k prodeji novostavbu moderního rodinného domu před dokončením, situovanou v klidné části města Rousínov. Dům se nachází na rovinatém pozemku v zástavbě nových rodinných domů a představuje ideální volbu pro rodinné bydlení s možností finální úpravy podle vašich představ. Dům nabízí moderní dispozici s dostatkem prostoru pro celou rodinu. Otevřený obytný prostor s jídelnou a kuchyní, tři pokoje, šatna, technická místnost a prostorné koupelny – vše navrženo s důrazem na pohodlí a praktičnost. Součástí domu je velká garáž, která poskytne nejen komfortní parkování, ale i dostatek místa pro dílnu, kola, kočárek či sezónní věci. Před domem je navíc možné zaparkovat 2 vozy. Nemovitost je ve fázi před kolaudací – nový majitel má tak jedinečnou možnost dokončit interiér podle svých představ (podlahy, dveře, sanita, kuchyně atd.). Pro prezentaci jsou použity vizualizační fotografie přímo od architekta. Pokud zájemce tento interiér osloví, je možné dům v tomto provedení dokončit přímo od stavitele a nebo si může dům dokončit individuálně. Zaujala vás nabídka? Neváhejte nás kontaktovat pro více informací nebo domluvení osobní prohlídky. Financování je možné hypotečním úvěrem. Společnost ARTOSS realitní kancelář, s.r.o. zdarma nabízí možnost využití služeb hypotečního poradce, který vám nezávazně poradí při zajištění nejvýhodnějšího hypotečního úvěru. Prezentované informace byly nabyty v dobré víře od vlastníka nemovitosti a naše společnost je zprostředkovává, co by data informačního charakteru. ARTOSS realitní kancelář, s.r.o. je řádným členem Asociace realitních kanceláří ČR.
ARTOSS realitní kancelář, s.r.o.


