Prodej - dům/vila, 146 m²
Rodinný dům se dvěma byty a kancelářemi, garáž, zahrada, širší centrum Roudnice nad Labem
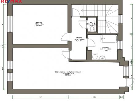
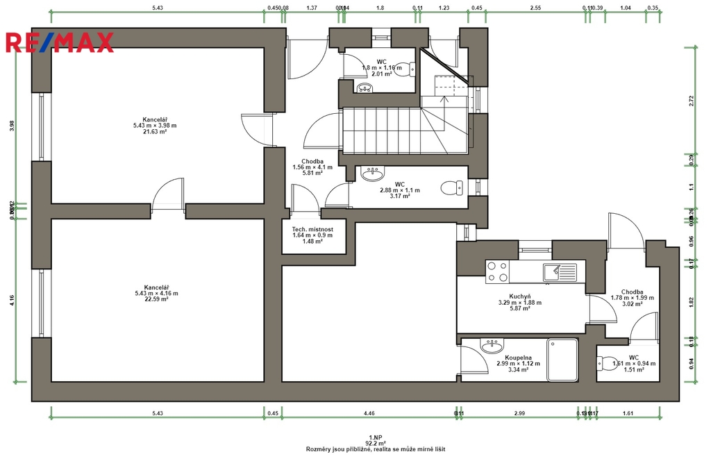
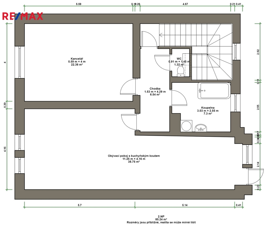
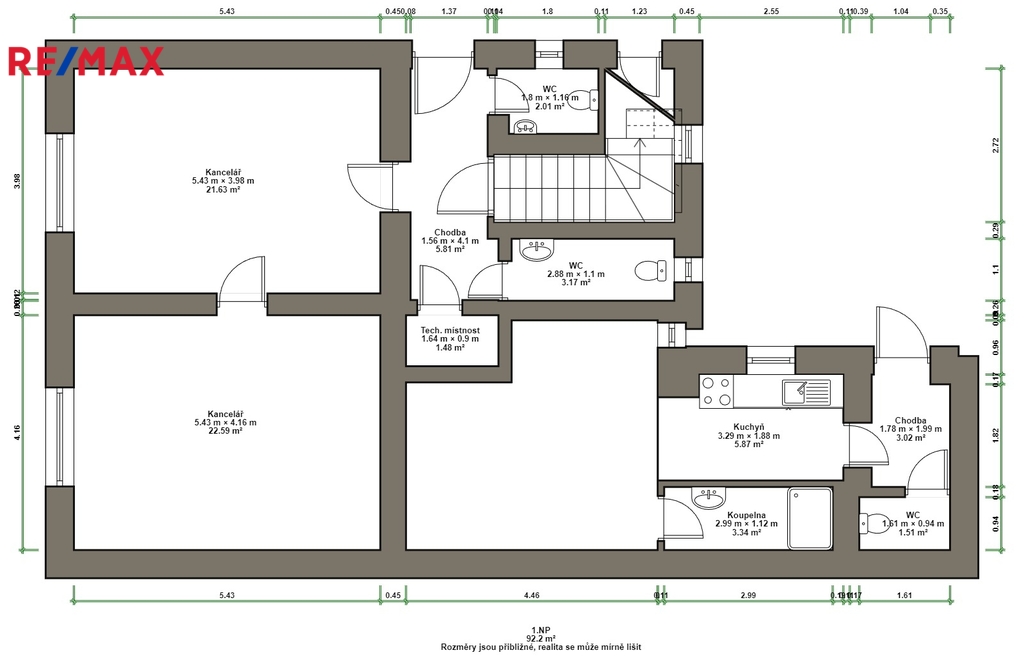
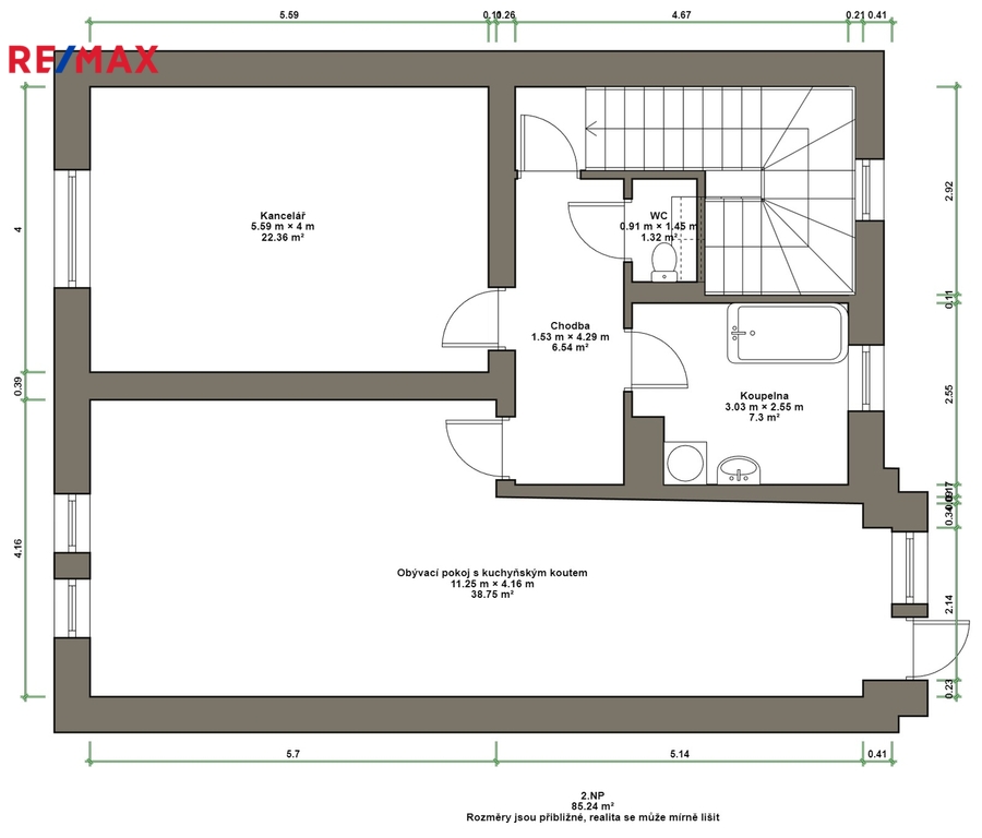
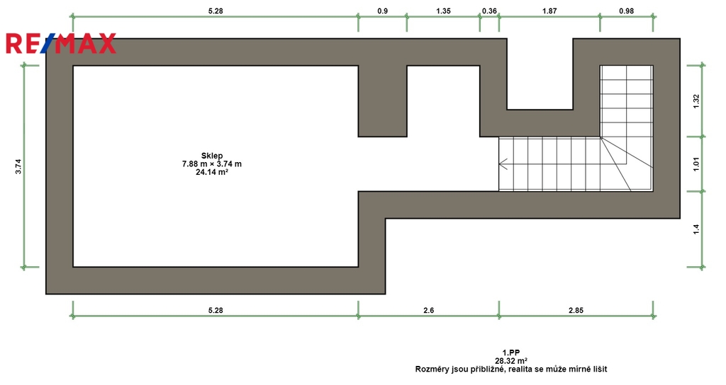
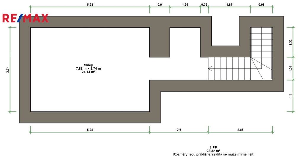
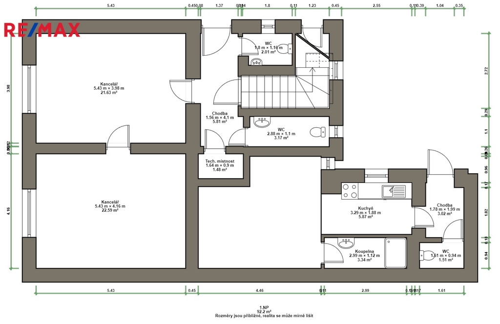
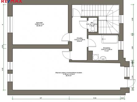
Nabízíme k prodeji krajový řadový dům v žádané lokalitě Roudnice nad Labem, který představuje ideální spojení stabilního výnosu a nadstandardního zázemí. Dům o celkové ploše přes 200m² prošel od roku 2002 pečlivou rekonstrukcí včetně zateplení, což udržuje provozní náklady na velmi příznivé úrovni (celkově cca 9.600 Kč/měsíc). Objekt je rozdělen do tří samostatně využitelných a oddělených celků: v přízemí se nachází komerční část se dvěma kancelářemi a zázemím, zadní přístavba nabízí samostatný ateliér 1+kk a v podkroví se nachází byt 2+kk (76 m²), jehož dominantou je soukromá terasa orientovaná do klidné zahrady. Nemovitost je v současné době kompletně pronajata s měsíčním nájemným 38.000 Kč + poplatky, což majiteli zajišťuje okamžitý roční příjem 456.000 Kč. Vzhledem k tomu, že výše nájemného nebyla poslední dva roky valorizována, nabízí se zde pro investora i významný potenciál pro navýšení výnosu. Předběžný propočet dosahuje výše cca 45.000,- Kč/měsíc, pak by celkový roční výnos dosahoval cca 5,4% a návratnost investice 18,5 roku. S ohledem na plánovanou stavbu VRT v lokalitě lze navíc předpokládat další zvýšení zájmu a cen nemovitostí v místě. K nemovitosti náleží udržovaný pozemek o celkové výměře 599 m², samostatná garáž a technické zázemí v suterénu. Strategická poloha v širším centru zajišťuje plnou občanskou vybavenost v docházkové vzdálenosti, rychlé vlakové spojení do Prahy i Ústí nad Labem a nájezd na dálnici D8 v řádu několika minut. VRT by snížila dojezd do centra Prahy na 19 minut, Roudnice by se tak stala širším předměstím hlavního města. Pokud hledáte dům, který může sloužit jak pro bydlení, tak pro Vaše podnikání, nebo naopak spíš investiční potenciál, jsem tu pro Vás a rád Vás uvítám na prohlídce. Prodávající si vyhrazuje právo vybrat kupujícího na základě jím zvolených kritérií.

