Pronájem - obchodní prostor, 65 m²
Prodejní, nebo kancelářský prostor, 65m2, Jana z Dražic, Roudnice nad Labem
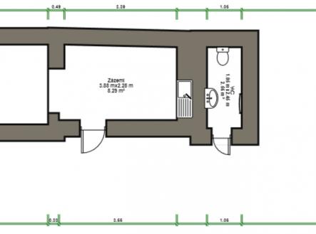
PŘEDBĚŽNĚ REZERVOVÁNO! Hledáte stabilní zázemí pro své podnikání na dobrém místě? Nabízíme k dlouhodobému pronájmu nebytový prostor o celkové výměře 65 m², situovaný přímo na frekventovaném náměstí Jana z Dražic v Roudnici nad Labem. Prostor byl naposledy provozován jako květinářství, obchod je zde zavedený a dobře viditelný, s možností umístění vlastního vývěsního štítu na dům. Nabízíme prodejnu s umyvadlem, vlastní WC a prostorný sklad, bonusem je venkovní prostor - soukromý dvorek mezi domem a skladem, ideální jako klidová zóna. Objekt je napojen na veškeré IS včetně velmi rychlého optického internetu a pevné linky, ústřední plynové topení doplňují ve skladu kamna na tuhá paliva. Prostor po předchozím nájemci vyžaduje částečné opravy (vymalování, drobné úpravy interiéru). To vám dává jedinečnou šanci přizpůsobit si design přesně vašemu brandu. Samozřejmostí je možnost umístění vývěsního štítu na fasádu. Dva měsíční nájmy, jako kauce, nájemce neplatí provizi RK. Pronajímající si vyhrazuje právo vybrat nájemce na základě jím zvolených kritérií.


