Prodej - dům/vila, 65 m²
Prodej rodinného domu typu bungalov 3+kk v Roudném - předání 2026
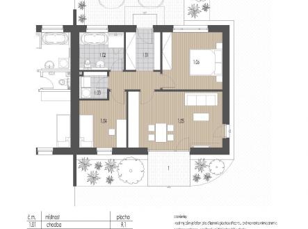
Rezidence „Zlaté Roudné“ výstavba pokračuje – moderní rodinný přízemní dům 3+kk č.101b. Dokončení, kolaudace, předání 10/2026. Dům se nachází v ulici Pšeničná, v Roudném na okraji Č. Budějovic. Aktuálně nabízíme různé typy domů na prodej. Domy jsou situovány v klidné části obce. Zahrady mají perfektní orientaci na jih. Skvělá dopravní dostupnost do města díky MHD i na dálnici (500 m sjezd od výstavby). Zákazník nyní může sám volit konečnou podobu domu výběrem dle vlastního přání (podlahových krytin, vnitřních dveří, obkladů, dlažeb a sanity koupelny), standardy předložíme zájemci. Rodinný dům „na klíč“ o dispozici 3+kk, přízemní dvojdům – č.101b s pozemkem 348 m2 (parc. č.480/166) a č.101/a (PRODANÝ). Obytná plocha domu je 65 m2 + terasa 12 m2. Zastavěná plocha domu 80,7 m2 + parkovací stání pro 2 auta. Dispozice: 1.NP – vstupní předsíň (4,94 m2), samostatné WC (1,94 m2), obývací pokoj s kuchyňským koutem (21,98m2), z obýváku je vstup na terasu o výměře 10,97 m2, 2x samostatný pokoj/ ložnice (13,96 m2, 10,7 m2), koupelna s WC ?(7,21 m2). Zpevněná plocha – terasa ze zámkové dlažby Best Beleza, vchod a parking ze zámkové dlažby Best Klasik, plot – podhrabový obrubník+pletivo (180–200cm), systémová branka cca 1m + 3m brána dvoukřídlá, okapový chodník včetně oblázků, příprava na venkovní žaluzie (kastlíky). Vybavenost: konstrukce Porotherm 240–300 obvod, vnitřní 200, příčky 150, zateplovací systém 180 mm polystyren, plastová okna a dveře – izolační trojsklo, veškeré vnitřní rozvody – elektřina, plyn, voda, topení, plynový kotel BAXI se zásobníkem vody, v celém domě podlahové vytápění, podlahy vinyl a dlažba, dveře s obložkami, koupelna se sprchovým koutem, umyvadlem a toaletou, příprava na fotovoltaiku. Bydlení v Roudném – soukromí ve vlastním domě, sportovní vyžití v okolní přírodě a snadná dostupnost do Č. Budějovic autem, MHD i cyklostezkou a nově obyvatelé šetří čas do zaměstnání díky sjezdu na dálnici, který je cca 500 m od domu. V blízkosti domu se nyní staví retail park, kde bude supermarket, market pro mazlíčky, samoobslužná pumpa a další obchody. Navazujeme na již několikátý úspěšně realizovaný a velmi žádaný projekt investora, který je jednička ve svém oboru. Velký zřetel je kladen na energetickou úspornost domu, aby jeho budoucí majitel měl co nejnižší náklady na provoz domu (PENB – B). Pozemky jsou přístupné po obecní komunikaci, výstavba probíhá na zkolaudovaném ZTV – plyn, elektřina, vodovod, kanalizace, Starnet – optický kabel. Hypoteční servis zdarma (naši hypoteční poradci řeší úvěry u všech bankovních domů za nejlepších podmínek na trhu).


