Prodej - dům/vila, 91 m²
Moderní rodinný dům 4+kk typ Stodola s pozemkem 594 m2- Zlaté Roudné
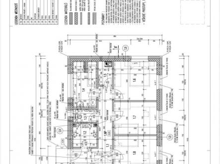
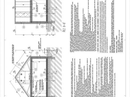
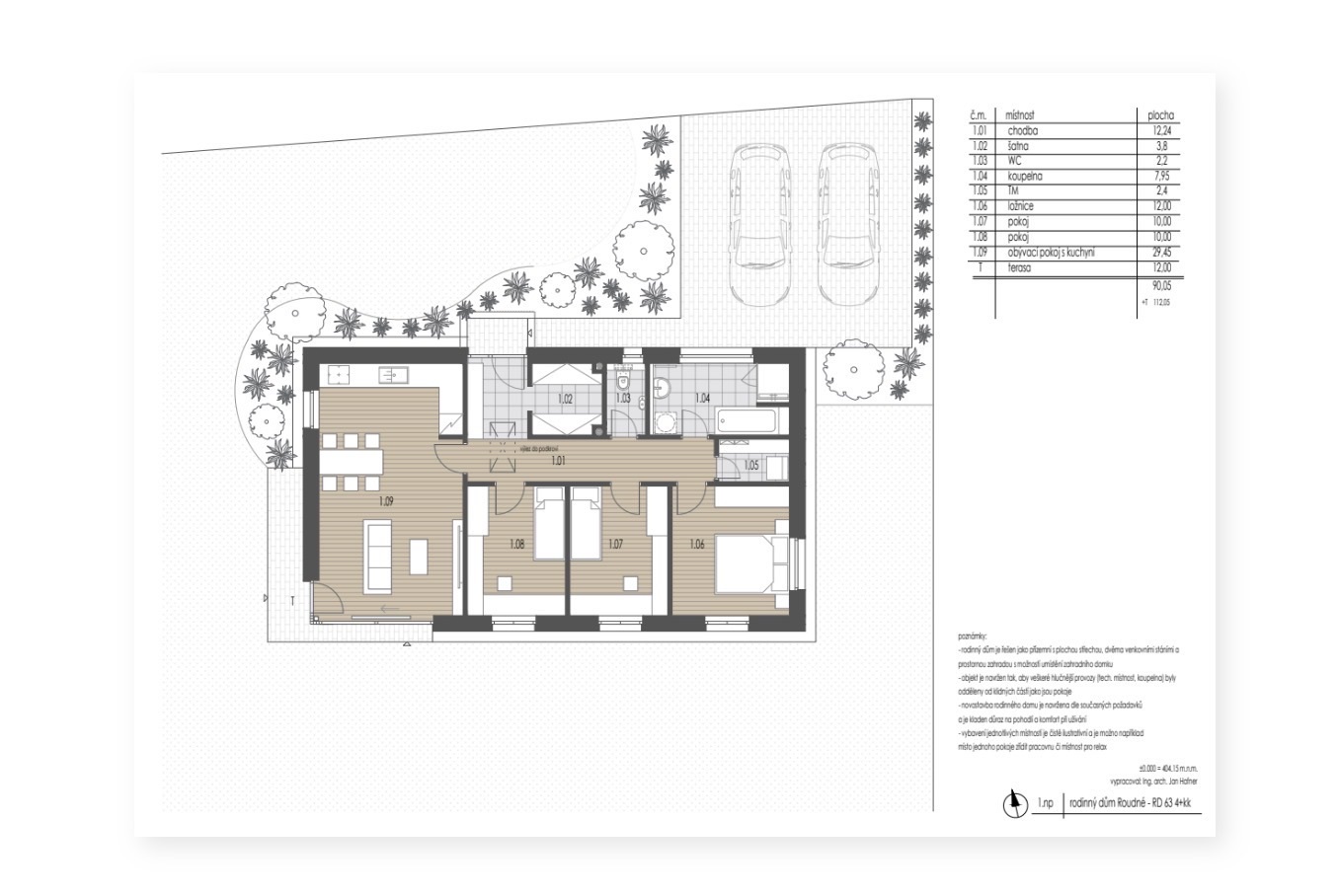
Rezidence „Zlaté Roudné“ – pokračuje výstavba v roce 2026/27. Prodej rodinných domů. K prodeji přízemní rodinný dům "na klíč" v ulici Žitná. V nabídce volný dům č. 58 na krásném rohovém pozemku, v zadní klidné části výstavby. Samostatný prostorný dům 4+kk typ "Stodola" s pozemkem o výměře 594 m2/p. č. 480/40 s moderním zpracováním a možností využití podkroví - pracovna, šatna, pokoj pro hosty. Zákazník nyní může sám volit konečnou podobu svého domu výběrem dle vlastního přání (podlahových krytin, vnitřních dveří, obkladů, dlažeb a sanity koupelny), standardy předložíme zájemci. Vybavenost obce Roudné: MHD, mateřská škola, hřiště, restaurace, cca 300m nově otevřen retailový park – Billa, Teta drogerie, lékárna, Asian food, pumpa 24/7knihovna, kulturní sál, víceúčelový sál, požární zbrojnice, sběrný dvůr. Navazujeme na již několikátý úspěšně realizovaný a velmi žádaný projekt investora, který je jednička ve svém oboru. Obytná plocha domu je 90,50m2. Zastavěná plocha domu 112,50m2 + parkovací stání pro 2 auta cca 36m2+ terasa o výměře 12m2. Pozemek je dostatečně velký a je možnost zvětšení domu, změny dispozic. Dispozice: samostatné WC(2,2m2), tech.místnost(2,4m2), koupelna s WC(7,95m2), obývací pokoj s kuch.koutem (29,45m2), chodba (12,24m2), 3 ložnice (12m2, 10m2, 10m2), šatna (3,8m2)+úložný prostor na půdě (možnost podkroví). Vybavenost domu: Zpevněná plocha – terasa ze zámkové dlažby Best Beleza, vchod a parking ze zámkové dlažby Best Klasik, plot – podhrabový obrubník + 3D drátěné poplastované pletivo (180–200cm), systémová branka cca 1m + 3m brána dvoukřídlá, příprava na venkovní žaluzie (kastlíky), příprava na krbová kamna a klimatizaci, konstrukce Porotherm 240–300 obvod, vnitřní 200, příčky 150, zateplovací systém 180/200mm polystyren, plastová okna a dveře – izolační trojsklo, barva bílá, veškeré vnitřní rozvody – elektřina, plyn, voda, topení, plynový kotel BAXI se zásobníkem vody, v celém domě podlahové vytápění, podlahy vinyl a dlažba, dveře s obložkami, koupelna se sprchovým koutem, vanou, umyvadlem a toaletou, příprava na fotovoltaiku. V ceně není: kuch.linka, svítidla, žaluzie, klimatizace, komín, nábytek, pergola, finální úprava zahrady. Pozemky jsou přístupné po obecní komunikaci, výstavba domů probíhá na zasíťovaném a zkolaudovaném ZTV–plyn, elektřina, vodovod, kanalizace, Starnet – optický kabel. Velký zřetel je kladen na energetickou úspornost domu, aby jeho budoucí majitel měl co nejnižší náklady na provoz domu (PENB–B). Hypoteční servis zdarma (naši hypoteční poradci řeší úvěry u všech bankovních domů za nejlepších podmínek na trhu). Navazujeme na již několikátý úspěšně realizovaný a velmi žádaný projekt investora, který je jednička ve svém oboru. Již 15 let bydlíme v domě, který stavěl tento developer, tak můžeme z vlastní zkušenosti vřele doporučit. Těšíme se na vás při prohlídce v Roudném. Buďte další spokojený soused.


