Prodej - dům/vila, 121 m²
Prodej rodinného domu, 121 m², Rotava, ul. Hornická
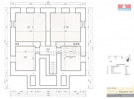
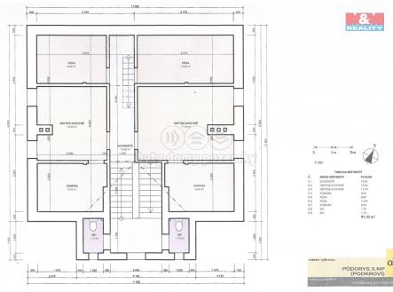
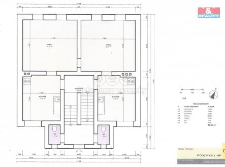
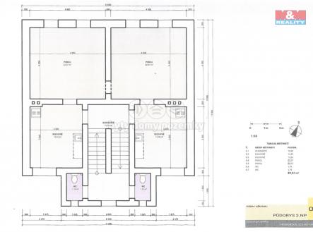
Prodej samostatně stojícího rodinného domu v klidné části obce Rotava. Jde o dům k celkové rekonstrukci. Tato investiční příležitost nabízí možnost přeměny na až šest bytových jednotek o dispozici 1+1, případně využít jako dvougenerační bydlení. Dům je cihlové konstrukce a má celkem čtyři nadzemní podlaží včetně půdy a jedno podzemní. Budova je podsklepená, střecha byla před šesti lety renovována kanadským šindelem a okapy jsou nové. Elektřina je dostupná na hranici pozemku, voda je k dispozici na žádost přípojky od obce. Kanalizace je obecní, ale její stav není znám. Pozemek u domu je pronajat od města a lze jej využívat jako zahradu. Příroda okolo nabízí relax a pěkné procházky spojené s houbařením. Tato nemovitost je ideální pro ty, kteří hledají projekt k rekonstrukci s potenciálem zajímavého zhodnocení nebo bydlení pro velkou rodinu.


