Pronájem - obchodní prostor, 190 m²
Pronájem nového nebytového prostoru 190 m2
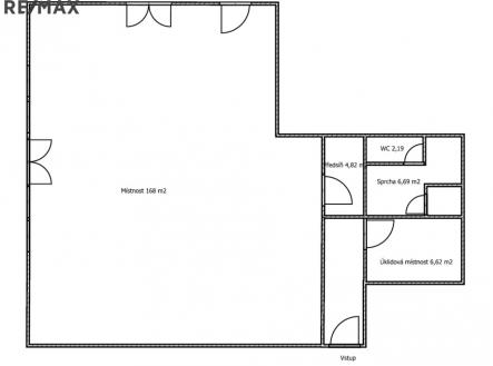
Exkluzivně nabízíme zcela nový, nepoužívaný nebytový prostor s přímým vstupem z ulice na atraktivním místě u hlavního tahu na Český Brod a Kolín. Nebytový prostor o výměře 190 m2 se nachází v přízemí cihlové novostavby a má široké využití, jako například atraktivní obchodní prostory – showroom, kanceláře, sklad nebo i prodejna potravin. Vytápění prostoru je zajištěno pomocí tepelného čerpadla, topení je podlahové. Prostor je řešen jako jedna velká plocha o výměře 168 m2, kterou je možno rozdělit sádrokartonovou příčkou dle potřeby, dále pak sklad, dvě toalety, kuchyňka, technická místnost, předsíň a případně sprcha. Nebytový prostor je vybaven zabezpečovacím zařízením, okna jsou plastová trojskla. Dům, ve kterém se prostor nachází je na oploceném pozemku s možností umístění reklamy, která bude velmi dobře viditelná pro projíždějící auta po hlavní silnici. Parkovaní před domem pro zákazníky, dále pak parkování v oploceném areálu, který je střežen kamerovým systémem se záznamem. Měsíční nájemné činí 40 000 Kč plus poplatky za služby 5 000 Kč. Vratná kauce je 55 000 Kč. Prostor je ihned volný. Pronajímající si vyhrazuje právo vybrat nájemce na základě jím zvolených kritérií.


