Prodej - dům/vila, 148 m²
RD 4+1+garáž - 148 m2, pozemek 206 m2, Zámecká ul., Rosice
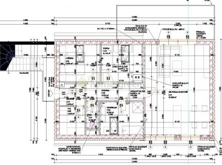
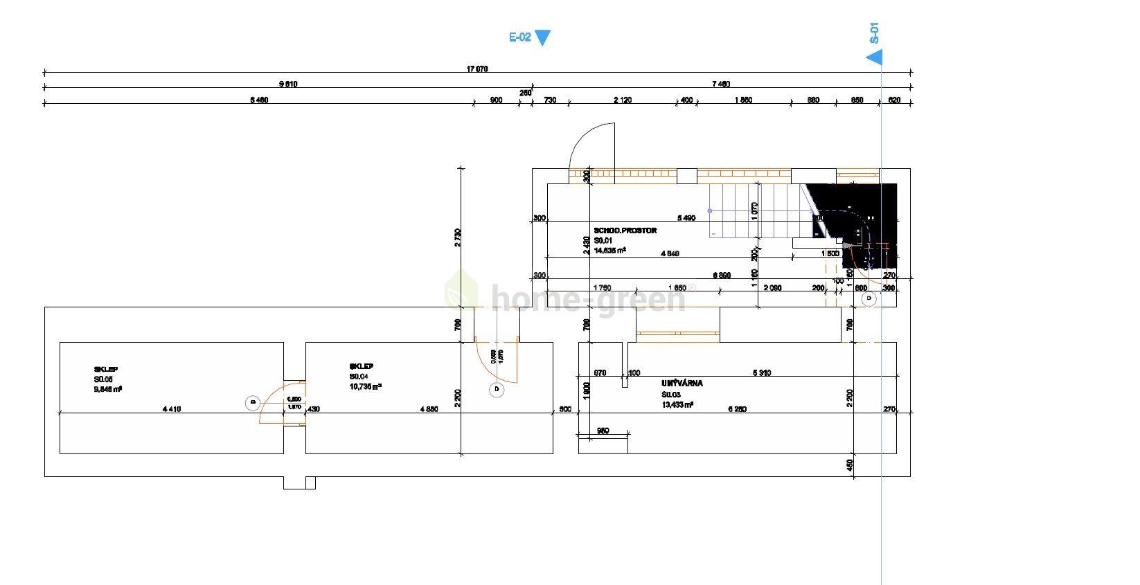
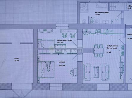
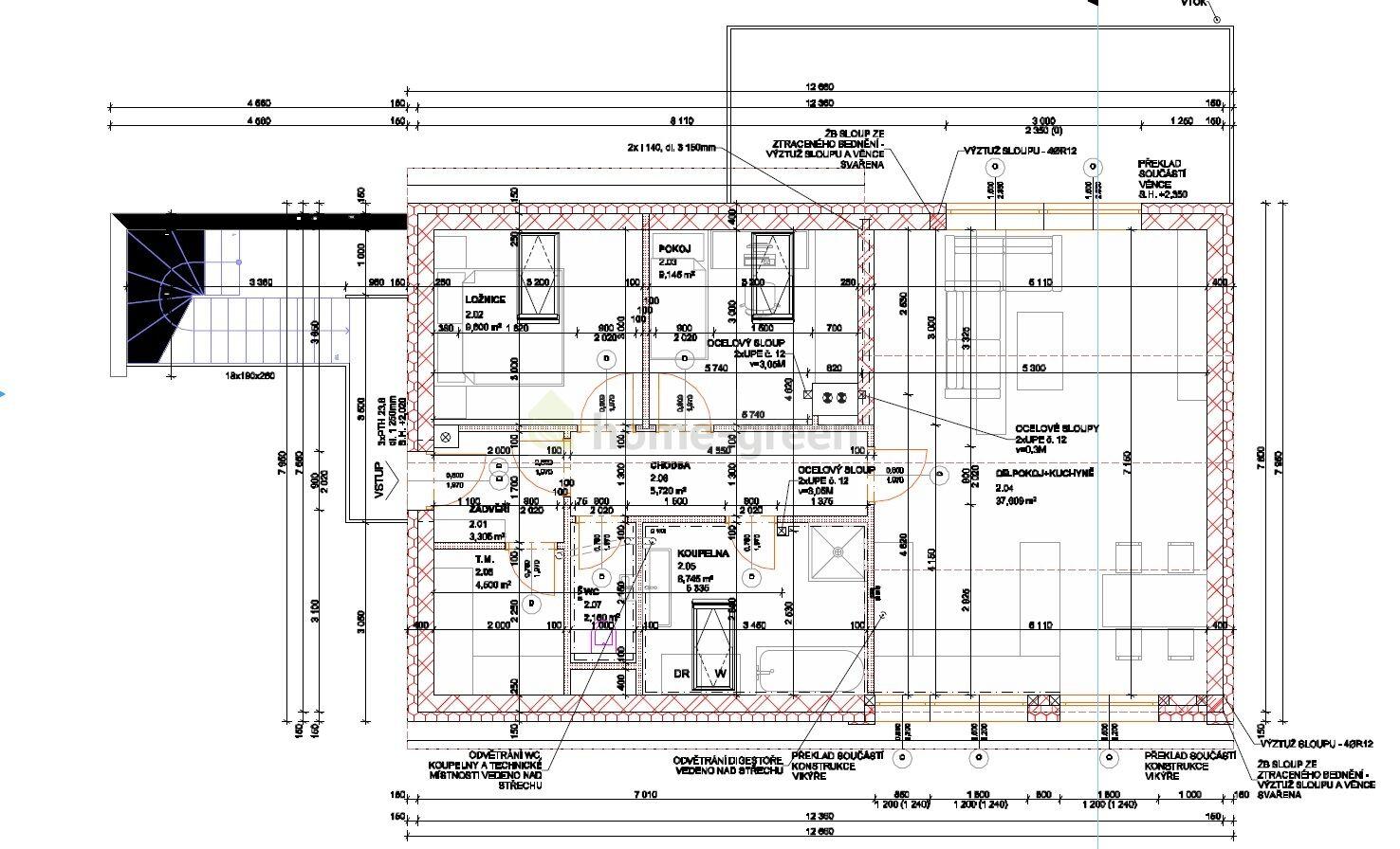
Zprostředkujeme Vám exkluzívně prodej RD o celkové užitné ploše 148 m2 včetně garáže a dvoupodlažního mezonetového bytu 4+1 na pozemku o velikosti 206 m2 ve velmi žádané lokalitě v Rosicích u Brna v Zámecké ulici. Jedná se o koncovou řadovou stavbu s hlavním vchodem orientovaným na zámecký park a místní komunikaci. Ze zahrady je krásný výhled do širokého okolí. K dispozici je znalecký posudek statika s kladným vyjádřením. Objekt je v původním stavu před rekonstrukcí, která může zcela proměnit jeho dispozici na nový domov ve stylu moderního bydlení, které vyhovuje jak mladým párům, tak i seniorům. Dům byl postaven v roce 1935 a v roce 1960 byla provedena kompletní rekonstrukce domu. Dům je zděný, střecha je sedlová, krytina je pálená skládaná, stropy rovné, okna špaletová dřevěná a ocelová. V domě jsou původní rozvody plynu, elektřiny, vody a odpadu. Ve 2.NP lze na obytné ploše 87 m2 nenáročnou rekonstrukcí vytvořit byt s dispozicí 3+KK s kuchyní a obývacím pokojem - 32 m2, ložnici - 19,5 m2, dětským pokojem nebo pracovnou - 11,5 m2, koupelnou + WC o vel. 11 m2, chodbou - 10 m2 a schodištěm do 1. PP - 4 m2. V 1.NP potom vybudovat na obytné ploše 32 m2 jeden pokoj, sprchu, WC a chodbu s východem na oplocenou zatravněnou zahradu. V zahradě je vchod do dvou sklepních místností. Ve 2.NP je zachovalá prostorná půda s možností vytvoření dalšího bytu 3+KK s užitnou plochou cca 70 m2. Pronájmem tohoto bytu by bylo možné částečně hradit hypotéku nebo získat pasivní příjem. K domu je přistavěná garáž o velikosti užitné plochy 29 m2, ve které je možné oddělit stěnou samostatný vstup z ulice a schodiště do podkrovního bytu. Město Rosice leží 20 km západně od Brna s nímž je spojeno linkami IDS-JMK (autobus, vlak). Město má vysoký stupeň občanské vybavenosti. Ulice Zámecká je v centrální části města cca 300 m od Palackého náměstí a zámku. Dojezdová vzdálenost do Brna je cca 15 minut. Jedná se o výhodnou investici do vlastního nebo nájemního bydlení pro všechny zájemce, kteří uvažují o koupi rodinného domu nebo bytu k rekonstrukci a ocení jako nadhodnotu garáž a zahradu. Se zajištěním financování této investice pomocí hypotečního úvěru Vám rádi pomůžeme. Energetický štítek je zpracováván, a proto uvádíme energetickou třídu G.


