Pronájem - kanceláře, 70 m²
Kancelářské prostory 100m2, Rosice, Komenského náměstí
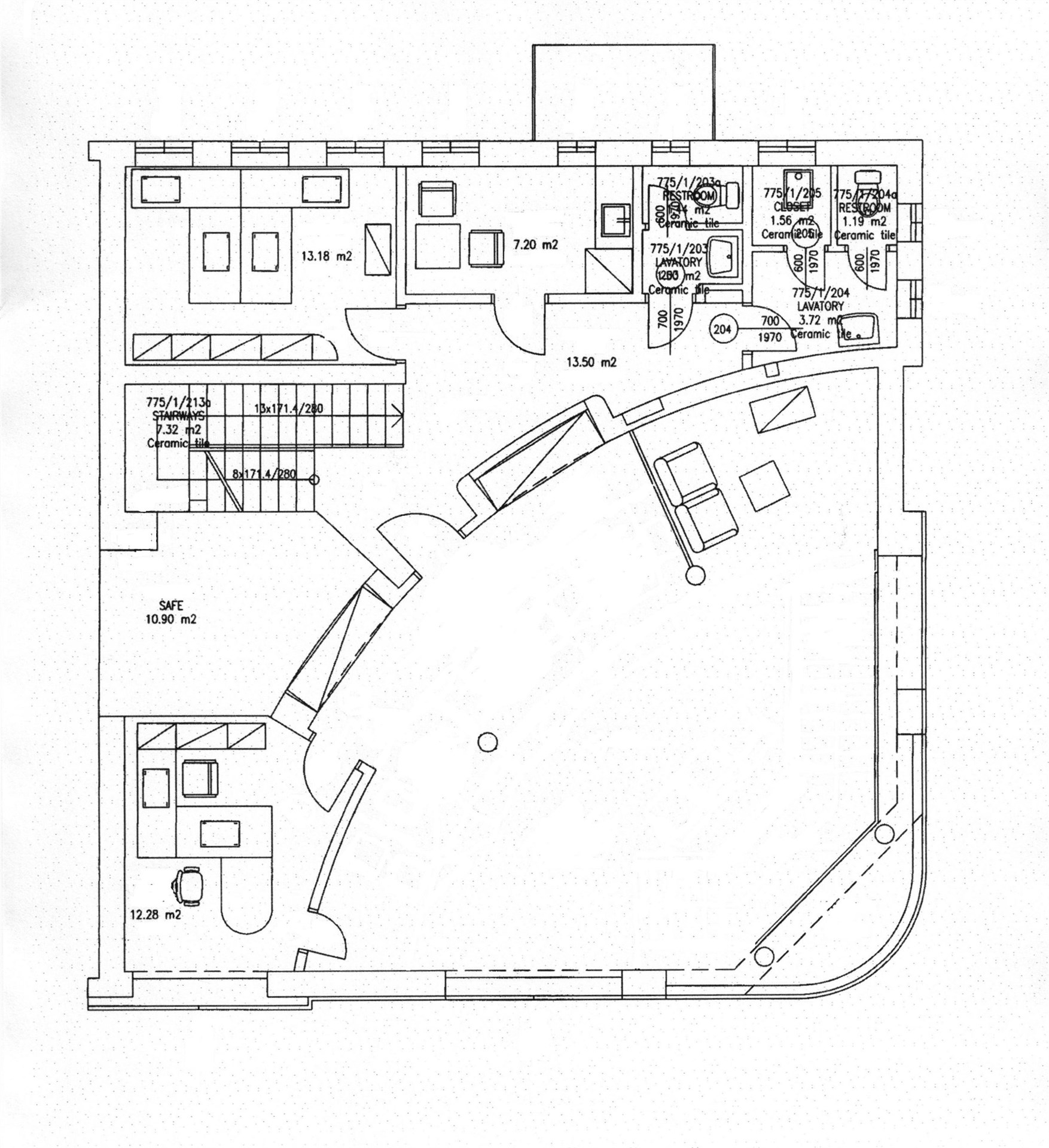
Nabízíme k pronájmu kancelářské prostory 100 m2, Rosice, Komenského náměstí. Jedná se celé 1. patro budovy se samostatným vstupem. Prostory jsou ideální jako reprezentativní sídlo firmy, s kompletním zázemím. Hlavní prostor, oreintace Východní, cca 45 m2, dále dvě menší kanceláře 13 a 12 m2, sklad bez oken 11 m2. Na patře je dále malá kuchyňka, oddělené WC a místnost pro úklid. Náklady: nájemné 12.000, Kč, energie 7.000, Kč ( voda, plyn topení, elektřina) Měření energií je oddělené. Majitel požaduje jednoměsíční vratnou kauci. K dispozici je také druhé patro (najem 6.000, Kč) viz samostatný inzerát. V případě proájmu obou pater bude snížené nájemné. Volné ihned vice infromací u makléře.


