Prodej - hotel, 1 335 m²
Prodej hotelu penzionu, 386 m², Rokytnice v Orlických horách
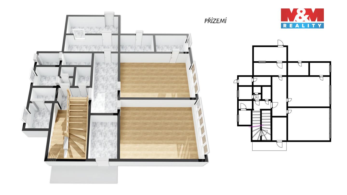
Hledáte prostory pro Vaše podnikatelské záměry? Nabízíme Vám k prodeji penzion v Rokytnici v Orlických horách přímo pod pevnostním opevněním Hanička. Ubytovací zařízení se rozprostírá na ploše 386 m². Velká část prošla rekonstrukcí, a to v podobě nových rozvodů topení, vody a elektroinstalace + kotle a také výměny oken a mnoha dalšího. Zároveň celé podkroví je nově zmodernizováno do tří velkých apartmánů. Nemovitost se nachází v klidné lokalitě uprostřed přírody s turistickým ruchem, a to jak v letě, tak i v zimě. Budova je připravena k okamžitému využití. Zajímá Vás více informací? Volejte o prohlídku, rád Vám vše představím.


