Prodej - dům/vila, 421 m²
Prodej stavebního pozemku s projektem penzionu „Chalet Emma“ před vydáním stavebního povolení Rokytn
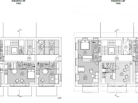
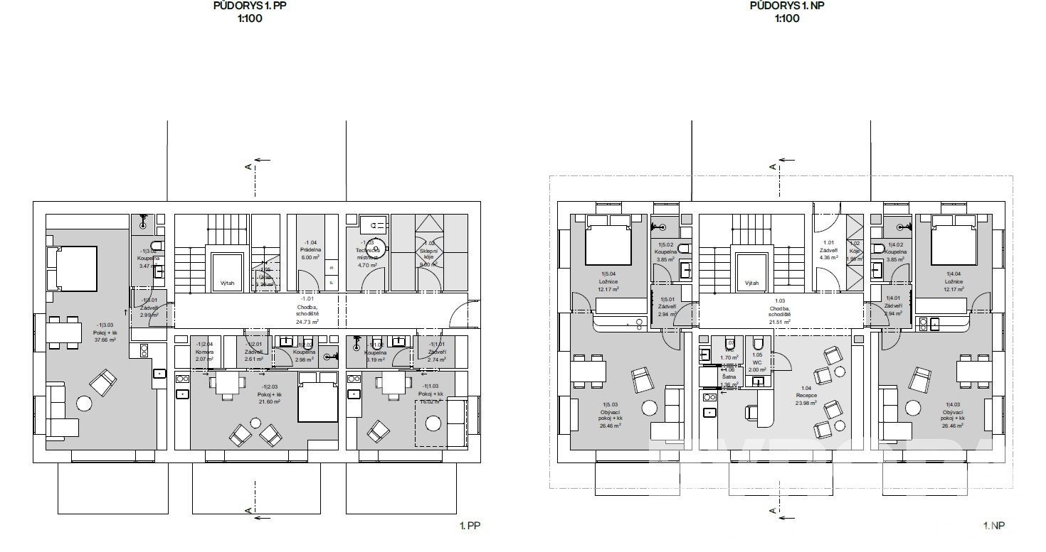
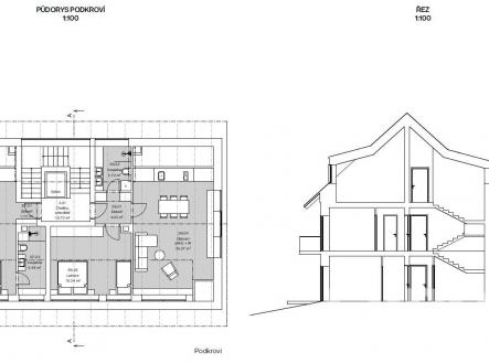
Prodej stavebního pozemku s projektem penzionu „Chalet Emma“ – Rokytnice nad Jizerou. Nabízíme stavební pozemek s kompletním projektem rodinného penzionu „Chalet Emma“ v atraktivní horské lokalitě Rokytnice nad Jizerou. Projekt je připraven ve stavu před vydáním stavebního povolení, což umožňuje rychlý start investice. Základní informace o projektu: • Rodinný penzion se 7 ubytovacími jednotkami a recepcí • Podsklepená jednopodlažní budova s obytným podkrovím • Jednotky mají vlastní sociální zařízení a kuchyňku, některé přímo s přístupem na terasu nebo balkon • Recepce, společenská místnost a úschovna sportovního vybavení • Hlavní vstup z ulice, druhý vstup z podzemního podlaží na terasu Charakteristika lokality: Pozemek se nachází v oblasti s rozvolněnou zástavbou – v okolí jsou rodinné domy, penziony a bytové domy. Nenachází se v záplavovém ani poddolovaném území. Přístup je z místní komunikace. Pozemek je součástí zastavitelného území města. Stav připravenosti projektu: • Projekt je ve stavu před vydáním stavebního povolení • Připravená plánovací smlouva • Demoliční výměr stávající stavby s nabytím právní moci • Zajištěna stanoviska dotčených orgánů • Kompletní projektová dokumentace je k dispozici Tento projekt představuje unikátní příležitost pro investory: stavební pozemek s připraveným projektem penzionu, včetně všech potřebných dokumentů, je ideální pro rychlou realizaci výstavby ubytovacího zařízení v prestižní horské lokalitě s celoroční turistickou atraktivitou.


