Prodej - kanceláře, 320 m²
Prodej restaurace s minipivovarem v Rokycanech
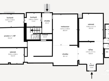
Představuji k prodeji minipivovar U Stočesů s fungující restaurací v Rokycanech na adrese Sokolská 282. Podívejte se na samostatnou stránku pivovaru viz odkaz ve videoprohlídce . Kompletní představu o dispozici a prostorovém uspořádání získáte z 3D virtuální prohlídky zde v inzerci. Lokalita: Budova minipivovaru a restaurace i s přilehlými okolními pozemky je umístěna v západní části města v klidné vilové čtvrti u Rakovského potoka. Díky velmi dobré dostupnosti je vyhledávaným cílem jak pro pěší návštěvníky, tak i pro cyklisty. Blízko je autobusová zastávka, park U Rakováčku a pěšky lze za 10 min. dojít na vlakové nádraží Rokycany. Dispozice: Dům má 1 podzemní sklepní podlaží a 2 nadzemní. V skelpních prostorech je vybudováno rozsáhlé zázemí pro výrobu, zrání, chlazení a sklad piva. V přízemí je restaurace, výčep, hlavní sál, dva salónky, WC, nově přistavěná kuchyně a částečně i prostor pro výrobu a prezentaci piva. V patře jsou další místnosti, které je možné využívat po provedení rekonstrukce jako obytný prostor o dispozici 3+1 s koupelnou a WC. V současné době je užívaný jako sklad. Kromě vnitřního schodiště je již vydáno i stavební povolení k vybudování samostatného schodiště do patra s přístupem ze zahrady. Venkovní prostory zahrnují místo pro posezení, petanqová hřiště a vzadu prostor pro vjezd zásobování. Technické informace: Dům je ve velmi dobrém stavu. V roce 2011 a 2017 proběhla rekonstrukce budovy. Jedná se o cihlovou stavbu. Okna jsou dřevěná s dvojskly. Na střeše jsou pálené střešní tašky. Do domu jsou zavedeny všechny inženýrské sítě: plyn, elektřina, obecní vodovod i kanalizace. Na střeše jsou navíc fotovoltaické panely. Hlavní jistič má hodnotu 63 A. Na pozemku je také kopaná studna, která se nyní nevyužívá. Ve vnitřních prostorech je výkonná vzduchotechnika. Stavbu je možné dále využívat na provozování restaurace a pivovaru a pokračovat v zaběhlém provozu. Další možnosti by byly například jako sídlo firmy, kancelářská budova, ateliér, vzdělávací centrum apod... Pro prodej domu zajistím kompletní realitní a právní servis. Kontaktujte mě, prosím, pro domluvení prohlídky: Jan Štěpánek TAURUM reality Uvedené výměry jsou orientační.


