Prodej - dům/vila, 205 m²
Prodej rodinného domu 251 m², pozemek 766 m², Říčany
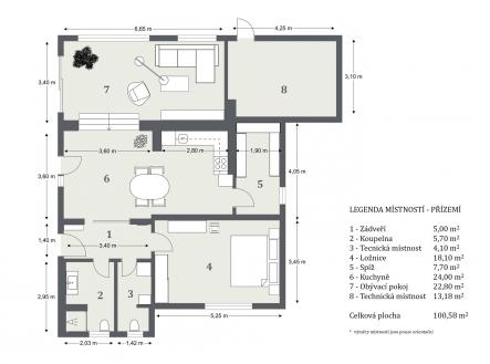
Říčany jsou místo, kde končí město a začíná život, který chcete žít. Ráno běh v lese, v létě přírodní koupaliště 450 m od domu a do Prahy 25 minut. Ne náhodou jsou Říčany dlouhodobě vyhlašovány nejlepším místem k životu v Česku. Spojují to, co lidé hledají, a eliminují to, co jim v běžném městě vadí. A právě tady vyrostl nový dům, který řeší tři věci, na kterých dnes záleží nejvíc: nízké náklady, flexibilní dispozici a moderní technologie. Jinými slovy tento dům spojuje chytré využití prostoru, úsporu a technologie, které pracují pro vás. Bydlení, které se přizpůsobí vám. Ne vy jemu. Dům, který vám nabízíme ve výhradním zastoupení majitele, můžete využít jako dvougenerační, jako zázemí pro podnikání nebo jako kombinaci bydlení a pronájmu. Klíčové benefity: Energetická třída A – úsporný provoz, budoucnost, která pracuje pro vás Fotovoltaika a tepelné čerpadlo – vlastní energie, minimální účty Rekuperace a klimatizace – čerstvý vzduch a komfort po celý rok Chytrá domácnost – ovládání brány, či zabezpečení z telefonu Dvě nabíječky pro elektromobily Kamerový systém a samostatné rozvody pro každé patro – bezpečí a flexibilita Projekt na vrt studny – soběstačnost do budoucna Dispozice domu: Celková podlahová plocha: 220,43 m² (vč. terasy 245,23 m²) Pozemek: 766 m² (zastavěná plocha 638 m² + zahrada 128 m²) Parkování: 2 místa na pozemku + 2 před domem Jednotka A – přízemí (100,58 m²) Samostatná jednotka s vlastním vstupem, ideální pro rodiče, hosty nebo k pronájmu. Zádveří, koupelna, technická místnost, ložnice s výhledem do zahrady, kuchyně s jídelnou (24 m²) a obývací pokoj (22,8 m²) Výhoda: vlastní kuchyň, koupelna, bezbariérový vstup, parkování a nabíječka EV. Jednotka B – 1. a 2. NP (cca 144,65 m²) Hlavní rodinný byt se dvěma koupelnami, terasou (24,8 m²) a třemi ložnicemi. V 1. NP kuchyně (31 m²) s jídelnou a obývákem (13 m²), koupelna a vstup na terasu. Ve 2. NP tři ložnice (13 m², 17,9 m², 12,8 m²) a koupelna s vanou. Výhoda: komfort, klid a přímé propojení s terasou i zahradou. Dvě plnohodnotné jednotky pod jednou střechou, celkem 6 pokojů, 3 koupelny, 2 kuchyně, terasa, zahrada, 4 parkovací místa. Moderní technologie, minimální náklady, příroda na dosah. Každý detail tohoto domu byl navržen tak, aby vám vrátil váš nejcennější zdroj – čas. Čas, který už netrávíte řešením účtů, údržbou ani složitými systémy. Čas, který věnujete sobě, rodině a životu, jaký chcete žít. Podobné příležitosti se v Říčanech objevují výjimečně a ty nejlepší si svého majitele najdou rychle. Rekonstrukce je kompletní od technologií po materiály a některé věci prostě nejdou popsat v inzerátu. Ráda vám dům ukážu osobně a férově s vámi proberu všechny detaily. Cena: k jednání po osobní prohlídce. Tenhle dům si nejde koupit „od stolu“. Až uvidíte, navnímáte a dovzvíte se dětaily, pochopíte proč je cena otevřená jednání s vážným zájemcem. Zavolejte mi a domluvíme si termín, který vám bude vyhovovat.

