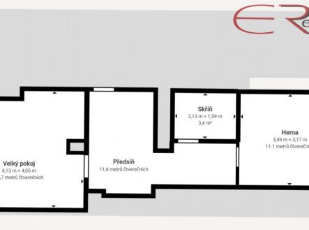
Prodej - dům/vila, 143 m²
Rodinný dům 143 m², Raspenava
Váš vysněný domov – Raspenava volá! Představte si... Ranní kávu na terase s šuměním řeky v pozadí. Děti si hrají na zahradě, zatímco vy plánujete, co zasadit do nového záhonu. Večer si zapálíte v krbových kamnech a vychutnáváte klid, jaký ve městě nikdy nenajdete. A přitom máte školu, školku i vlakové nádraží na dosah ruky! Raspenava Tato malebná obec v Liberecké oblasti je místem, kde se zastaví čas. Vodní tok přímo za humny, zelené louky kam oko dohlédne, a přesto veškerá občanská vybavenost na dosah. Pro rodiny s dětmi ideální – školka a základní škola v docházkové vzdálenosti, vlakové spojení zajišťuje snadnou dostupnost do okolních měst. Raspenava je zkrátka místo, kde se žije, ne jen bydlí! Dům, který má duši i moderní komfort Zastavěná plocha: 116 m²Pozemek: prostorných 656 m²Stav: kompletně zrekonstruovaný interiér, připraven k nastěhování! Co vás čeká uvnitř? Před 2 lety prošel dům kompletní proměnou: • ️ Zateplený interiér se štukovými povrchy • Úplně nový topný systém – rozvody, tělesa, krásná krbová kamna a kotel na tuhá paliva • Nové rozvody elektřiny a vody • Nová kuchyňská linka • Pevný internet ve všech místnostech – ano, i home office zde bude fungovat perfektně! • Nový bojler a podlahy Dříve bylo dokončeno: • Před 7 lety: zateplené a obložené podkroví • Před 10 lety: plastová okna Dům vás přivítá hřejivou atmosférou a moderním komfortem – stačí si přivézt kufry a začít žít! Zahrada plná možností 656 m² pro vaše sny! Prostor pro letní grilovačky, dětský bazének, jahody na záhoně nebo jen lenošení v houpací síti. Máte zde dostatek místa pro všechno, co milujete. A k tomu prostorná plechová garáž pro auto, nářadí nebo dílnu. Technické zázemí na jedničku Voda: veřejný vodovod + studna na pozemku (dvojitá jistota!) Odpad: septik s možností napojení na veřejnou kanalizaci Plyn: HUP na hranici pozemku Internet: rozveden po celém domě Bonus: Prostor pro vaši kreativitu! Vnější plášť domu čeká na finální úpravy – což je pro vás jedinečná příležitost! Můžete si dům dotáhnout přesně podle svých představ a využít aktuální dotační programy (Nová zelená úsporám apod.), které vám mohou pokrýt až 50 % nákladů. Ušetříte peníze a získáte dům šitý na míru! Jsme tu pro vás Pomůžeme vám s financováním, hypotékou i všemi formalitami. Máte otázky? Chcete si dům prohlédnout? Stačí zavolat – rádi vám vše ukážeme a poradíme! Pro koho je tento dům? Pro rodiny, které chtějí vyrůst v přírodě Pro milovníky klidu, kteří nechtějí být odříznuti od civilizace Pro ty, kdo hledají hodnotu za rozumnou cenu Pro lidi s vizí, kteří ocení možnost dotvořit si vlastní ráj Volejte ještě dnes

