Prodej bytu, 4+1, 94 m²
Prodej prostorného bytu 4+1, 94 m² + sklep 10 m², v centru Rakovníka – ulice Na Sekyře
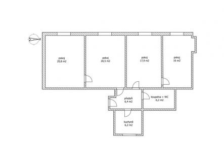
Nabízíme k prodeji prostorný byt o dispozici 4+1 a celkové užitné ploše 94 m², který se nachází ve zvýšeném přízemí cihlového domu v centru Rakovníka, v ulici Na Sekyře. K bytu náleží také sklep o velikosti 10 m². Lokalita v těsné blízkosti Husova náměstí (cca 100 metrů) nabízí veškerou občanskou vybavenost včetně obchodů, kaváren a služeb. Byt disponuje moderní, prostornou kuchyní vybavenou plynovým sporákem a elektrickou troubou značky Mora. Ohřev vody a vytápění zajišťuje plynový kotel Junkers, s rozvodem tepla prostřednictvím radiátorů. Teplotu je možné pohodlně regulovat pomocí termostatu. V bytě jsou instalována plastová okna s izolačními trojskly, která zajišťují dobré tepelně-izolační vlastnosti i akustický komfort. Podlahové krytiny v bytě byly kompletně renovovány a nově položena lina ve všech místnostech. Elektrické rozvody jsou v mědi. Byt je udržovaný a ve velmi dobrém technickém stavu. Díky svým parametrům, dispozici a poloze v centru města je možné byt využít nejen k bydlení, ale také jako administrativní prostory či kanceláře se společnou kuchyní a zázemím. V rámci domu je možné využívat klidný, udržovaný vnitroblok se zelení. Jedná se o atraktivní nabídku prostorného bytu v centru města s kompletní občanskou vybaveností a výbornou dostupností všech služeb.


