Prodej - dům/vila, 175 m²
Prodej rodinného domu 5+kk s pozemkem (283 m²), ul. Syrovická, Rajhrad (2)
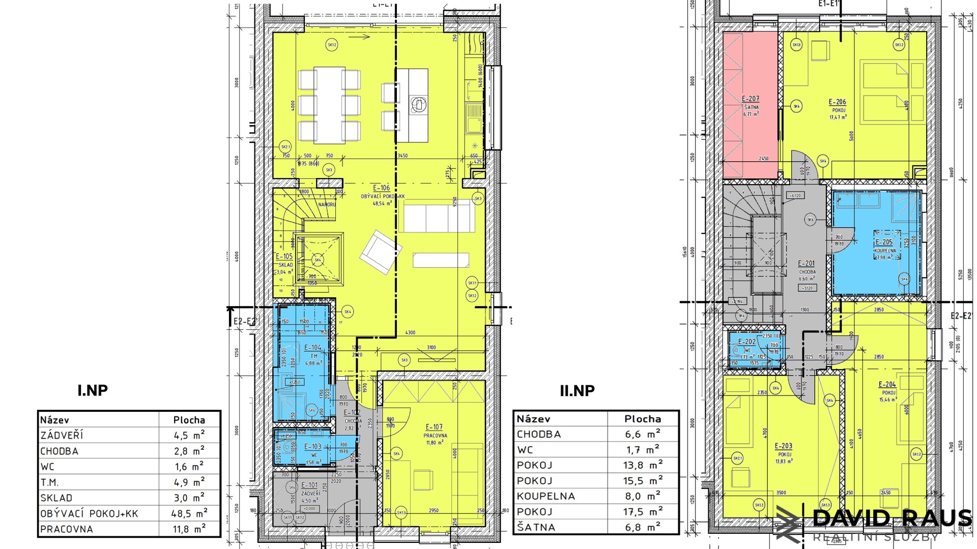
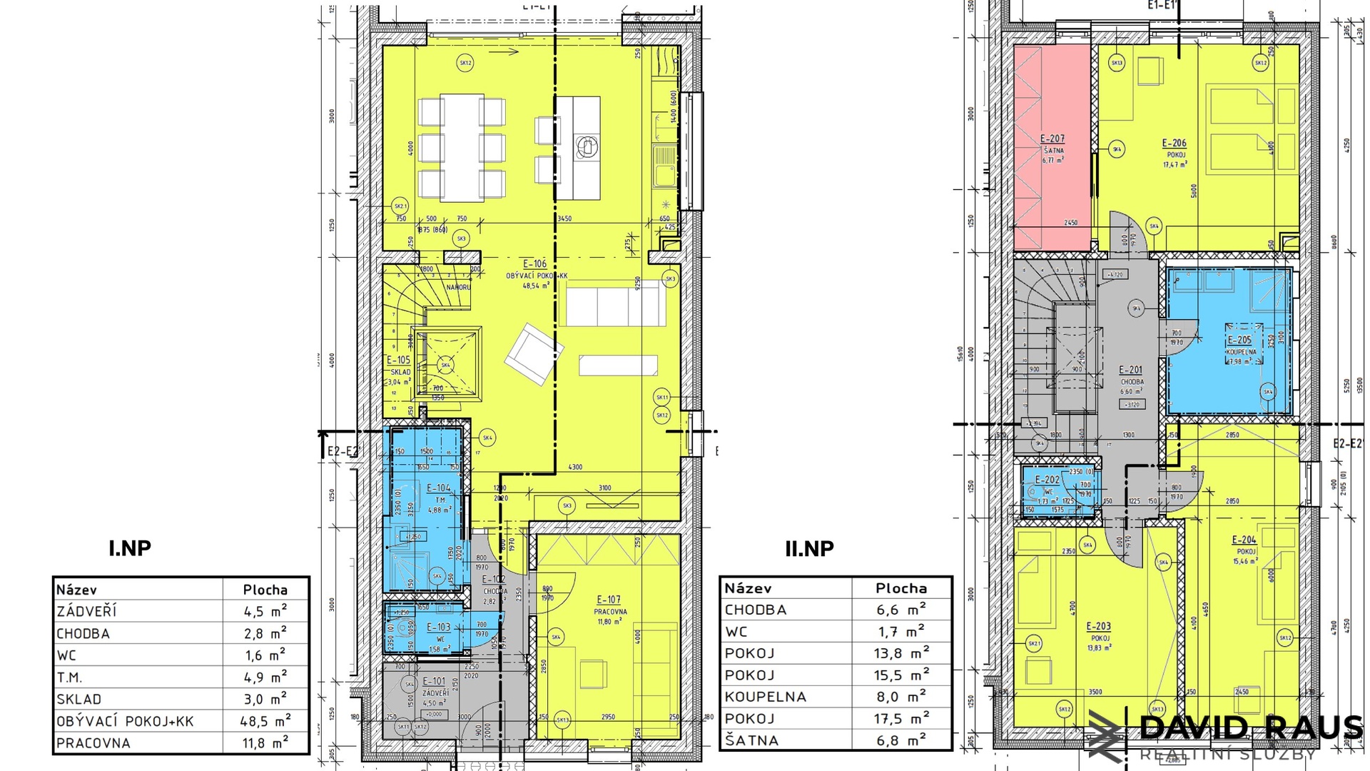
Nabízím k prodeji rodinný dům (č.2) o dispozici 5+kk, se zastřešeným parkovacím stáním na vlastním pozemku (283 m²), ve městě Rajhrad. Rodinný dům o podlahové ploše 175 m² je ve fázi výstavby a je jeden ze čtyř nízkoenergetických rodinných domů na ulici Syrovická, v Rajhradě. Energetické náročnost domu je klasifikována do třídy A - mimořádně úsporné. Předpokládaný termín dokončení 3.kvartál 2026. Dispozice domu: 1.NP Vstupní dveře vedou do zádveří ( 4,5 m²), vedoucí do chodby (2,8 m²) s přístupem na samostatné WC ( 1,6 m²), do technické místnosti ( 4,9 m²), pracovny (11,8m²), skladu (3,0 m²)a otevřeného obývacího pokoje s kuchyňským koutem ( 48,5 m²). Ústředním prvkem propojující jednotlivá patra domu je schodiště z obývacího pokoje. 2.NP Do druhého patra domu vystoupáme po schodišti na chodbu ( 6,6 m²), kde se nachází tři samostatné pokoje, které mohou sloužit jako samostatné dva dětské pokoje ( 13,8m², 15,5m²) a ložnice (17,5m²) ze které vedou dveře do šatny (6,8m²). K dispozici na patře je prostorná koupelna ( 8,0 m²) a samostatné WC ( 1,7m²). Základní informace : - výstavba RD na klíč (5+kk ) - podlahová plocha domu 175 m² - užitná plocha domu 147 m² - výměra pozemku 283 m² - fotovoltaická elektrárna - podlahové teplovodní topení - tepelné čerpadlo - zastřešené parkovací stání - perfektní občanská vybavenost a dostupnost do města Brna - atraktivní lokalita pro bydlení - předpokládaný termín dokončení 3.kvartál 2026 Veškerý právní servis zajištěn. Nabízím možnost financování. Pro více informací kontaktujte makléře.


