Prodej - dům/vila, 57 m²
Prodej domu Radnice
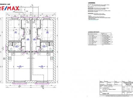
Nabízíme k prodeji novostavbu přízemního rodinného dvojdomu. Objekt je řešen jako samostatně stojící, se dvěma bytovými jednotkami o dispozici 2+kk a podlahové ploše cca 58 m² a součástí je sklep o velikosti cca 36 m², avšak je možné jej zakoupit i jako jeden celek – rodinný dům. V této fázi výstavby je navíc stále možnost úpravy dispozice dle individuálních požadavků budoucího majitele. Celková plocha pozemku činí 723 m², zastavěná plocha domu 156 m². V 1.NP se nachází kuchyň s obývacím pokojem, ložnice, koupelna, předsíň. V 1.PP je prostorný sklep pro každou bytovou jednotku s denním světlem, který lze využít i jako pracovnu či fitness. Součástí 1.PP je i technické zázemí pro bytové jednotky. Ke každému bytu patří zahrada a o celkové výměře 478 m2. Zahrada je ve společném vlastnictví dvojdomu a bude rozdělena ideální polovinou. Vytápění je řešeno teplovodním podlahovým topením napojeným na tepelné čerpadlo NIBE, součástí jsou 2 zásobníky TUV (2×125 l). Na střeše budou instalovány fotovoltaické panely o výkonu 30 kWp, což zajišťuje velmi úsporný provoz domu. Dvojdům spadá do energetické třídy A, což ho řadí mezi budovy s minimální náročností energie. Stavba je navržena jako zděná z keramických cihel POROTHERM (obvodové zdivo 300 mm, příčky 115 mm). Krov je z dřevěných vazníků, pultová střecha s plechovou falcovanou krytinou. Osazena budou plastová okna s trojskly, v exteriéru v barvě antracit, v interiéru bílá, doplněná o venkovní žaluzie. Vstupní dveře budou ve stejném barevném provedení. Podlahy obytných místností vinylové, v koupelně, na WC a v technické místnosti keramické dlažby. Pozemek bude oplocen pletivem a budou provedeny terénní úpravy. Zpevněné plochy budou ze zámkové a terasové dlažby. Cena zahrnuje kompletní realizaci domu – základovou desku, projektovou dokumentaci včetně stavebního povolení a poplatků, výstavbu domu, přípojky, kolaudaci, venkovní terénní úpravy, zpevněné plochy a oplocení pozemku. Momentálně je nemovitost v počáteční fázi výstavby s plánovaným dokončením zima 2026. Dům bude napojen na veřejný vodovod, kanalizaci a elektrickou síť. Podlahy, dveře, sanita, obklady – vše bude nové, velmi vkusně sladěné, v příjemných klidných tónech. Projekt nabízí prostor pro klientské změny a individuální úpravy podle přání budoucího majitele. Nemovitost se nachází na okraji obce a je ideálním řešením pro ty, kteří hledají kombinaci klidného bydlení s výhodami městské infrastruktury. Veškerá občanská vybavenost se nachází v obci (MŠ, ZŠ, obchody, krásná kavárna, zdravotní zařízení, hotel, restaurace, tenisové kurty atd.) Napojení severního Rokycanska na dálnici D5 bylo již dokončeno a momentálně jste v centru Plzně cca do 25 minut, na nájezd na dálnici směr Praha do 12 min. Pro více informací mě neváhejte kontaktovat, ráda s Vámi projdu projektovou dokumentaci a možnosti změn. Vizualizace jsou ilustrační. Prodávající si vyhrazuje právo vybrat kupujícího na základě jím zvolených kritérií.


