Prodej - dům/vila, 213 m²
Rodinný dům v centru obce
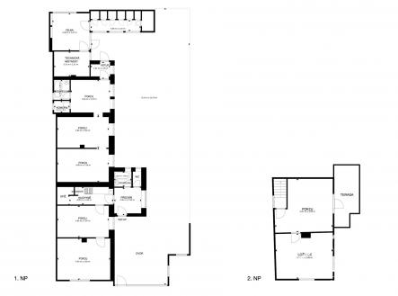
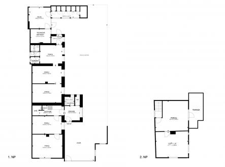
Dovoluji si vám nabídnout soubor staveb v obci Radim. První stavbou je dům s č.p. postavený v roce 1971. Do domu vstoupíte verandou, ve které naleznete sociální zařízení. V chodbičce v přízemí je umístěna kuchyňská linka se dřezem, spíž a schody do 1.NP. Vlevo od kuchyňské linky jsou pak dva průchozí pokoje. V 1.NP naleznete dva další pokoje a vstup na balkon. Na tento dům navazuje původní rodinný dům o dispozici 2+1, který je určen buď ke kompletní rekonstrukci, nebo demolici. Na pozemku se dále nachází vedlejší stavby - garáž, kotelna a dílny. Veškeré stavby jsou určeny k rekonstrukci. Dům je napojen na plyn, obecní vodu, vytápění plynovým kotlem. Největší devizou je však pozemek samotný. Umístěn je v klidné části obce, přesto v centru. V obci naleznete základní občanskou vybavenost - dva obchody, poštu, MŠ a ZŠ do 5. třídy, ordinaci obvodního lékaře a box Zásilkovny. Doporučuji prohlídku. Majitel si vyhrazuje právo vybrat zájemce na základě jím zvolených kritérií. Financování koupě této nemovitosti Vám ráda pomůžu zajistit.


