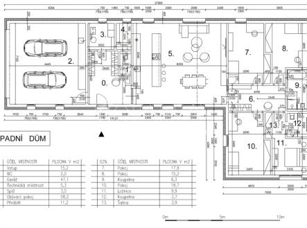
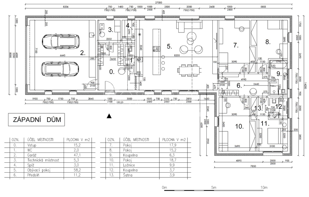
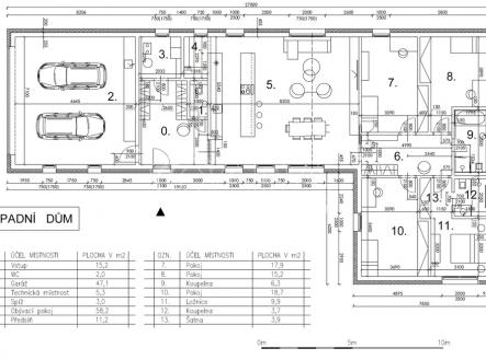
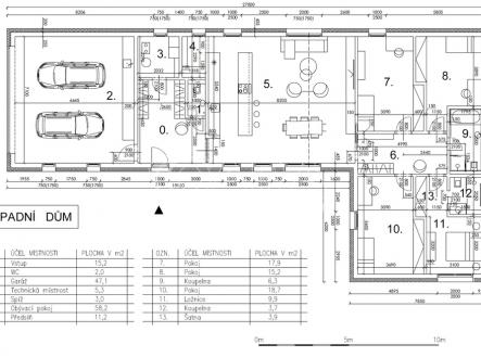
Prodej - dům/vila, 218 m²
Novostavba pasivního domu, 5+kk, garáž, 218m2, pozemek 1003m2, Olešky, Praha - Východ
Vítejte v Oleškách, kde vznikla dvojice domů, které si na nic nehrají. Čistý design. Promyšlený prostor. Klid. Technologie, které slouží – neobtěžují. Domy, které dýchají – stejně jako vy. ✔️ 218 m² promyšleného prostoru pro život, tvoření i odpočinek. ✔️ 1 003 m² půdy – země, která vám dá kořeny i svobodu. Domy jsou navrženy v energetickém standardu (PENB A) – úsporné, zdravé a dlouhodobě udržitelné. Každý detail zde podporuje principy minimalismu, zdraví a ekologie: ✔️ Rekuperace Zehnder pro čerstvý vzduch a zdravý spánek ✔️ Fotovoltaika Solax s bateriemi a wallboxem pro vlastní energii ✔️ Vytápění a ohřev vody Tepelné čerpadlo Stiebel Eltron ✔️ Chlazení tepelným čerpadlem Stiebel Eltron ✔️ Předokenní žaluzie pro komfort i úsporu Dispozice, která nabízí prostor pro vaši kreativitu A také praktická jistota, že vše potřebné máte k dispozici: ✔️ Vodovod i vlastní vrtaná studna – voda, která proudí i patří vám ✔️ Veřejná kanalizace – čistota a jednoduchost bez starostí ✔️ Plyn v pilíři – energie pro další možnosti ✔️ Optický internet – spojení se světem, i když žijete v klidu Tohle není jen dům. Je to prostor v rovnováze – technologie a ticho, čistota a teplo domova. Cena domu je uvedena vč. DPH. Poslední dům v nabídce. Těšíme se na prohlídku Jaroslav Beránek


