Prodej bytu, 3+kk, 67 m²
Prodej bytu 3+kk ve výstavbě v projektu Zahrada Mlýnská
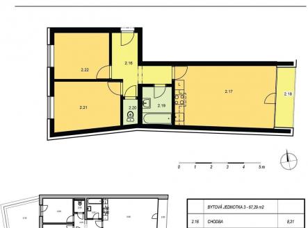
Nabízíme k prodeji byty v nově realizovaném projektu "zahrada Mlýnská“. V probíhající výstavbě bytového domu v Prostějově na ulici Mlýnská Vám nabízíme byty vel. 3+kk, o celkové podlahové ploše 67 - 87 m2, umístěné ve 1. – 3. patře cihlového bytového domu s výtahem. Byty jsou orientované na východní a západní stranu a součástí bytů je balkon. Možnost koupě garáže v přízemí domu za cenu 670.000 Kč, která poskytuje i úložný prostor, díky délce 6 m. Další parkovací plochy jsou k dispozici na dvoře za cenu 189.000 Kč. K bytům bez koupě garáže lze vybrat sklep. Dům se staví v centru města, a přitom je umístěn v zahradě. Bytový dům má centrální plynové vytápění i ohřev teplé vody s měřiči pro každou bytovou jednotku. Samozřejmostí je přípojka optického internetu v každém bytě. Všechny byty splňují náročné protihlukové normy, mají kvalitní výbavu již ve standardu, kvalitní sanitu i obklady. Možnost výběru materiálu a řešení klientských změn během výstavby. V případě zájmu Vám naše kancelář zajistí exkluzivní financování koupě bytu hypotečním úvěrem. Výstavba domu již probíhá a dokončena bude nejpozději v do konce roku 2026. PENB – B.


