Prodej - dům/vila, 315 m²
Prodej - dům/vila, 315 m2
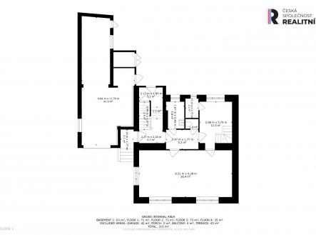
Výborná investiční příležitost v Prostějově! Uvažujete o nákupu zajímavé nemovitosti na investici nebo pro rodinu jako vícegenerační bydlení? Tak zpozorněte! Právě pro Vás tady máme pěknou vilu z roku 1942, která se nachází v žádané lokalitě Šárka malebného města Prostějov – města módy a tenisu. Tato pětipodlažní vila se nachází v ulici Spitznerova, jen 15 minut pěšky od centra. Pyšní se podlahovou plochou krásných 362 m2 + terasa 42 m2 + balkónky 4 m2 a stojící na pozemku o výměře 423 m2. Celý dům je propojen centrálním betonovým schodištěm, ze kterého je vstup do sklepa, na zahradu do a všech čtyř bytů: V suterénu je sklep 60 m2 V 1.NP je byt 1+1 s užitnou plochou 60 m2 + dvojgaráž 42 m2 Ve 2.NP je byt 2+1 s užitnou plochou 60 m2 + balkónek 2 m2 Ve 3.NP je byt 2+1 s užitnou plochou 60 m2 + balkónek 2 m2 Ve 4.NP je byt 1+kk užitnou plochou 23 m2 + terasa 42 m2 Dům je krásný, kvalitně postavený, ale potřebuje rekonstrukci. Střecha je plochá a z velké terasy ve 4.NP Vás nadchne dechberoucí výhled na město a prostějovskou radnici. Na podlahách je použita kombinace dlažby, parket a lina. Do domu je zavedena elektřina, plyn, obecní vodovod i kanalizace. Přidanou hodnotou je garáž 42 m2 pro dva vozy i dílnu, zahrada za domem se vzrostlými stromy, soukromím a další terasou. Prostějov je stále se rozvíjející tenisové město s Jadranskou atmosférou, kterému se v létě říká mini Split – klidné, slunečné, plné sportu a dobré nálady. Vyrostli zde Tomáš Berdych, Petra Kvitová, Jiří Veselý a spousta dalších hvězd světového tenisu. Prostějov je město parků, kaváren a promenády kolem Kolářových sadů nebo Hloučely, které připomínají středomořskou pohodu. A protože je město doslova protkané cyklostezkami, úplně všichni tu jezdí na kole! Nejzajímavější je ale pořizovací hodnota této nemovitosti. Metr čtvereční podlahové plochy domu činí pouhých 39.000 Kč! Tak neváhejte a pro více informací a virtuální prohlídku nemovitosti kontaktujte makléře.


