Pronájem - skladovací prostor
Skladové prostory 193 m2 v areálu vedle Turnova u dálnice D10
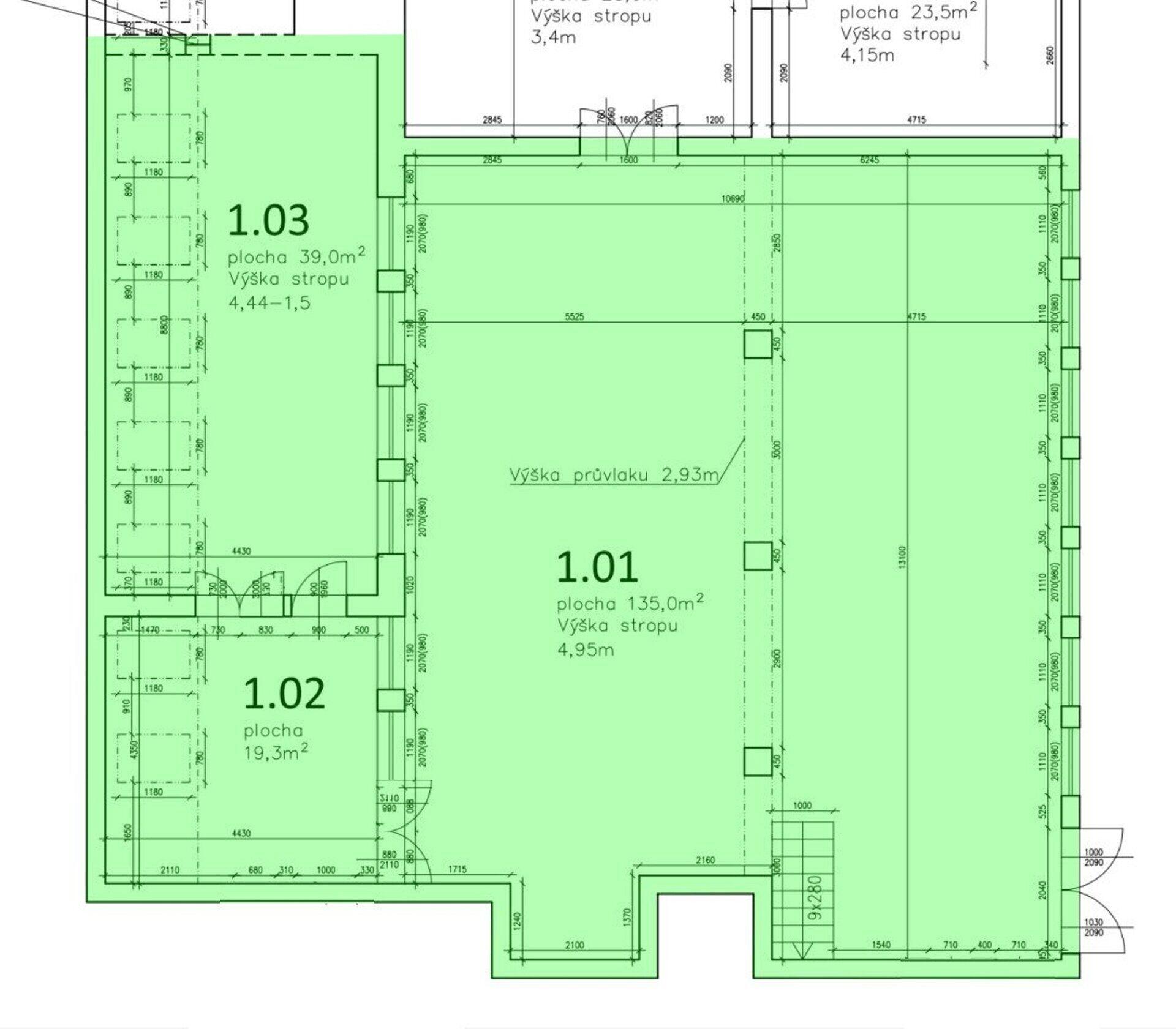
K pronájmu nabízíme prostory o celkové ploše 193 m2. Prostory jsou temperované (temperace je v ceně nájmu, vytápění na vyšší teplotu je možné za úhradu). Jedná se o tři prostory propojené vraty / velkými dveřmi: - prostor 135 m², výška stropu 4,95 m - prostor 39 m², výška stropu až 4,4 m (částečně šikmá střecha se světlíky) - prostor 19 m², výška stropu až 4,4 m (částečně šikmá střecha se světlíky). Objekt je: - přízemní se ŽB konstrukcí, s obezděním - bez podsklepení - střecha se světlíky - betonové podlahy - okna s dvojitým zasklením - vstup vraty ze dvora - elektrické instalace – zásuvky a osvětlení - v jedné místnosti instalováno umyvadlo - budova je celkově v dobrém stavu. Dvůr je vyasfaltován. Před areálem je k dispozici vlastní parkoviště pro až 40 osobních automobilů (zpevněno zatravňovací dlažbou a betonovými panely). Pronajímané prostory nemají přístup k WC (v případě dlouhodobého pronájmu lze uvažovat o vybudování samostatného WC). V případě zájmu lze prostory nejenom temperovat, ale za úhradu i vytápět na běžnou teplotu.


