Prodej - chata/rekreační objekt, 128 m²
Prodej chalupy, 128 m², Příkrý
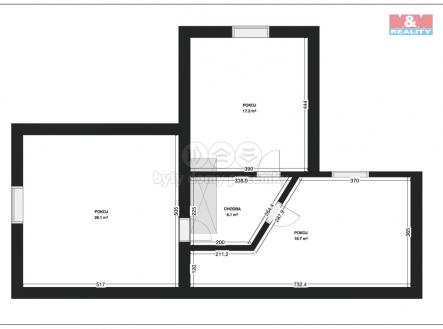
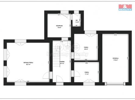
Malebná chalupa s pěti ložnicemi a stodolou – Příkrý u Semil Hledáte klidné útočiště v srdci přírody? Tato kouzelná chalupa v obci Příkrý u Semil nabízí dokonalou kombinaci tradičního venkovského stylu a dostatku prostoru pro rodinnou rekreaci i trvalé bydlení. Dispozice zahrnuje světlý obývací pokoj s kuchyňským koutem, pět samostatných ložnic, koupelnu a samostatnou toaletu. Součástí stavby je i prostorná stodola vhodná k dalšímu využití – dílna, sklad nebo ateliér. Zahrada je pečlivě udržovaná, osázená okrasnými keři a květinami, ideální pro relaxaci i dětské hry. Pár kroků od domu se nachází místní obchod s každodenním čerstvým pečivem, což přispívá k pohodlnému venkovskému životu. Okolí nabízí nádherné výhledy do krajiny Podkrkonoší, bohaté možnosti turistiky, cyklovýletů či výletů do přírody. V blízkém dosahu jsou Semily, Vysoké nad Jizerou nebo Bozkovské dolomitové jeskyně. Chalupa se prodává částečně vybavená. Předmětem prodeje je spoluvlastnický podíl 3/4.


