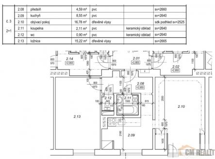
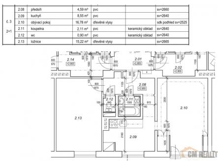
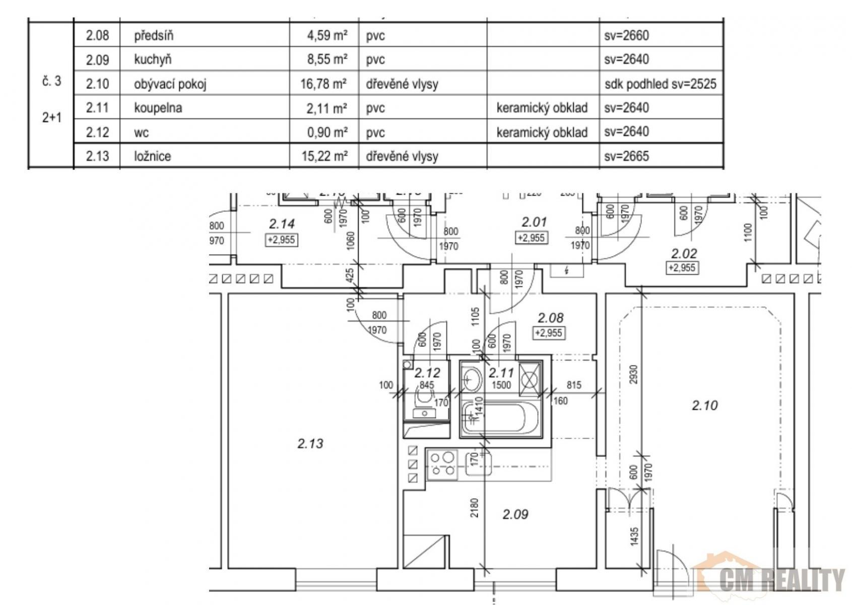
Prodej bytu, 2+1, 48 m²
Prodej bytu 2+1, Výmyslov - Henčlov
Hledáte útulné místo k bydlení nebo zajímavou investiční příležitost? Tento byt o dispozici 2+1 a výměře 48 m ve Výmyslově vám nabídne oboje. Nachází se ve 2. nadzemním podlaží cihlového domu bez zateplení se 7 bytovými jednotkami. Byt je světlý, s orientací na jihozápad, s příjemným výhledem do okolní zeleně. Nemovitost je určena ke kompletní rekonstrukci. Ideální pro mladý pár nebo jako investice na pronájem. Součástí je nová kuchyňská linka a interiérové dveře. Původní dřevěná okna, potřeba dodělat podlahy. V bytě jsou připravené funkční komínové vývody ve všech místnostech sousední byty je využívají pro instalaci krbových kamen na tuhá paliva, ze kterých vedou rozvody teplé vody do radiátorů. Alternativně lze vytápění řešit elektrokotlem, instalace do stupaček. Budova je napojena na veřejný vodovod a jednotnou kanalizační síť. Ohřev vody zajišťuje elektrický bojler. K bytu náleží dvě sklepní kóje o výměře 1,5m2 a 2,8 m2, v domě je k dispozici také společná kolárna. Střecha i statika budovy jsou v pořádku, nečekají vás žádné nečekané investice. Parkování je umožněno na pozemku přímo před domem. Měsíční náklady do fondu oprav činí 1 727 Kč. Obec Výmyslov je součástí městské části Henčlov ve statutárním městě Přerov. Nabízí ideální kombinaci venkovského klidu a městské infrastruktury. Do centra Přerova se autem dostanete za pouhých 5 minut.


