Pronájem bytu, 4+kk, 99 m²
Zařízené 4+kk, 2 lodžie - P6, Dědinská
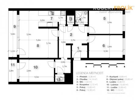
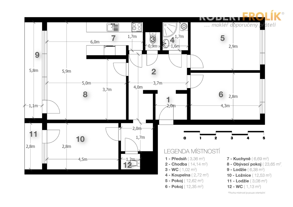
Hledáte prostorný byt pro Vaší rodinu, kde každý člen domácnosti bude mít svůj koutek? To by se Vám mohl líbit tento byt 4+kk se dvěmi lodžiemi! Najdete ho ve 3. patře panelového domu bez výtahu, v ulici Dědinská, v Praze 6 - Ruzyni, jen kousek od konečné stanice tram. Byt o výměře cca 90 m2 (+ lodžie cca 6 a 3 m2) Vám nabídne velkou vstupní halu, ze které jsou přístupné všechny ostatní místnosti, obývací pokoj s jídelnou, kuchyňský kout, 3 samostatné pokoje, koupelnu se sprchovým koutem, 2 samostatné WC a 2 lodžie. Je kompletně zařízený a připravený k pronájmu, takže se můžete ihned nastěhovat. A bydlet se Vám tu bude určitě dobře! Nebudete mít žádné sousedy nad hlavou, sousední byt sdílí s tímto bytem jen jednu zeď, ulice není rušná, takže si tu určitě užijete klid a pohodu. Kromě nájemného budete platit zálohy na všechny energie a služby v částce 7.000 Kč/měs.. Poplatky se nepřevádějí na nájemce, majitel je 1x ročně vyúčtuje dle skutečných spotřeb. Jistota je jedno nájemné + poplatky, provize jedno nájemné. Byt je připravený k nastěhování. PENB třída D.


