Prodej bytu, 4+1, 115 m²
Velký byt 4+1, 115m² s terasou a výhledem do zeleně – Praha 5, Pod Skalkou
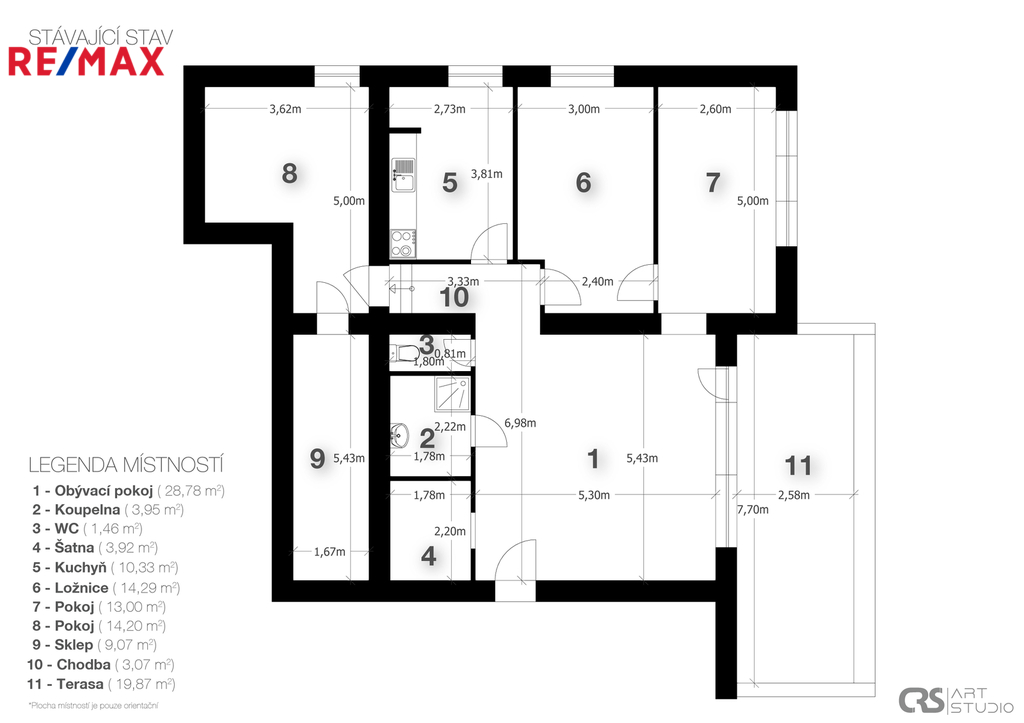
Exkluzivně nabízíme k prodeji prostorný a světlý byt, který vám dá pocit soukromí, klidu a přitom budete jen pár minut od centra. Byt o dispozici 4+1, 95m² v ulici Pod Skalkou kombinuje výhledy do zeleně s velkou terasou 20m² orientovanou na jih a vynikající dopravní dostupností. Nachází se v prvním patře menšího bytového domu (6 bytových jednotek), v jedné z nejklidnějších ulic Smíchova. Byt má řadu benefitů. Tu představuje především velká terasa 20 m². Ideální pro snídaně i večerní víno při západu slunce. Dále pak velký prosvětlený pokoj s přímým vstupem na terasu. Tři samostatné ložnice a kuchyň. Příjemným doplňkem jsou rovněž i nízké provozní náklady. Byt je vyklizený a připravený pro rekonstrukci. Ideální pro ty, kteří chtějí vytvořit osobité bydlení na tomto krásném místě. Lokalita Pod Skalkou je klidná rezidenční ulice, která je obklopená přírodou. V pěší vzdálenosti od Husových sadů, lesoparku Na Cibulce i vily Bertramka. Na dosah je park Ladronka, obora Hvězda, nemocnice Motol. V okolí najdete školy, školky, sportoviště, obchody i kavárny. Do centra (Anděl / Smíchovské nádraží) se dostanete během 5 minut autem nebo MHD. Tento byt představuje jedinečnou příležitost pro ty, kdo hledají prostorné bydlení a chtějí si vytvořit domov přesně podle svých představ za velmi příznivou cenu. Náhledové fotografie s vybavením jsou vizualizace, aby si budoucí kupující dovedl lépe představit, co se do daného prostoru vejde nebo jak se dá zařídit. Nový majitel bytu jistě ocení jeho prostor, světlo a polohu. Rád vám jej osobně představím.


